Property Description
Wonderful ground floor flat with direct access to communal garden with a newly extended 962 year lease and allocated parking space. Set within this grand building in a secluded cul-de-sac location moments from Crystal Palace Park and Penge West station
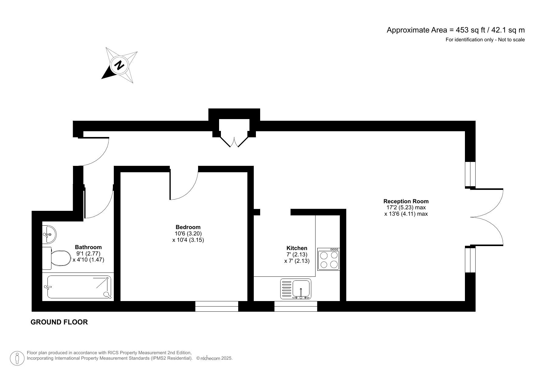
- One Double Bedroom
- Newly extended 962 year lease
- Central heating
- Chain free
- Ideal first time purchase
- Communal garden
- Allocated Parking
- Secluded cul-de-sac location
- Highly regarded location
- Moments from Crystal Palace Park and Penge West station
Rooms
Communal Entrance Private Entrance HallBuilt in cupboard, entryphone system, laminate flooring, radiator, spotlights
Lounge/Dining RoomDouble glazed doors to communal garden, double glazed windows to rear, laminate flooring, radiator, spotlights
KitchenWindow to side, range of fitted wall and base units, integrated oven, hob and extractor, plumbed for washing machine, space for fridge, stainless steel sink unit and drainer
BedroomDouble glazed windows to side, carpet, radiator, spotlights
BathroomBath with mixer tap and shower attachment, wash hand basin, low flush wc, mirrored cabinet, heated towel rail, spotlights, extractor fan
