Property Description
**** Guide Price £650,000-£675,000 ****
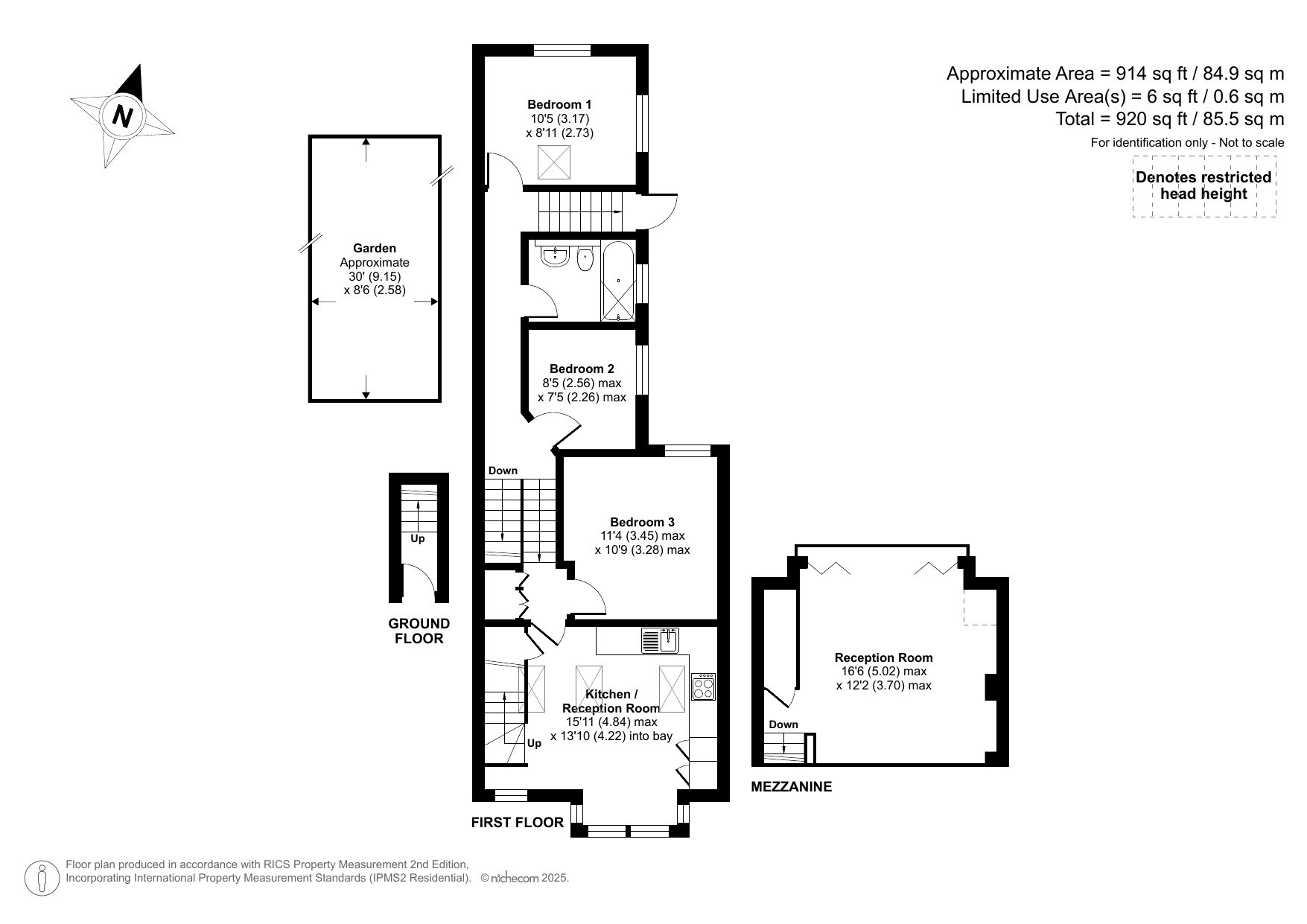
Spacious and well presented New York style loft apartment split level period conversion with far reaching views over London.
Benefitting from 16' mezzanine floor with bi folding doors overlooking London, modern kitchen and bathroom, three bedrooms, long lease and rear garden.
Located opposite Dawsons Hill and within walking distance of shops, schools, public transport and Dulwich park.
- Period conversion
- New York style loft apartment
- Overall floor area 85sqm
- Split level
- Private rear garden
- Long lease
- Far reaching views over London
- Modern Kitchen and bathroom
- Mezzanine floor
- Opposite Dawsons Hill
- Well located for shops, schools, public transport and Dulwich park
Rooms
Communal EntranceWooden communal entrance door, tiled flooring.
Entrance HallWooden entrance door, carpet, stairs to first floor.
Lounge (Mezzanine floor)Bi fold doors to Juliet balcony with far reaching viewings over London, radiator, laminate flooring, storage cupboard, spotlights.
KitchenDouble glazed sash bay window to front with shutter blinds, Double glazed sash window to front with shutter blinds, three velux windows, range of fitted white high gloss wall and base units with beech work surface over, one bowl black sink unit with mixer tap, oven, hob and extractor fan to remain, integrated dishwasher, space for american fridge/freezer, cupboard housing wall mounted boiler, understairs storage cupboard with plumbing for washing machine, oak flooring.
LandingPart opaque double glazed door to garden, radiator, oak flooring, stairs up to kitchen.
Bedroom OneDouble glazed sash window to rear, velux window, radiator, carpet.
Bedroom TwoDouble glazed sash window to rear, radiator, oak flooring.
Bedroom ThreeDouble glazed sash window to side, radiator, oak flooring.
BathroomOpaque double glazed sash window to side, heated towel rail, three piece bathroom suite comprising of: panelled bath with mixer tap and shower attachment, wall mounted wash hand basin with mixer tap and vanity unit under and enclosed low level wc, part tiled walls, underfloor heating, extractor fan, spotlights.
