Property Description
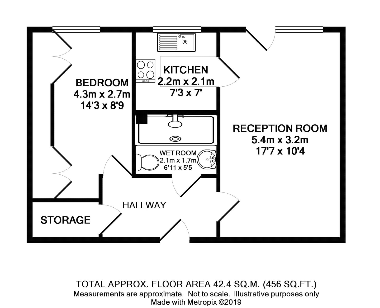
We have available a ONE BEDROOM GROUND FLOOR APARTMENT with direct access to the gardens. Offering a bright and neutral feel throughout.
OVER 60's ONLY. Located conveniently for the town centre with Post Office, shops, library, bus links and train station is this fabulous, exclusively for the over 60's, warden assisted development.
The development offers a great communal lounge, which is an amazing entertainment space, as well as a fantastic laundry room. Benefits include an entry system, emergency pull cords and access to the local area.
- Ground Floor Retirement Apartment
- Direct Access To The Gardens
- Double Bedroom
- Wet Room
- Communal Gardens
- Community Room
- Warden Assisted
