Property Description
** Guide price £260,000-£280,000 **
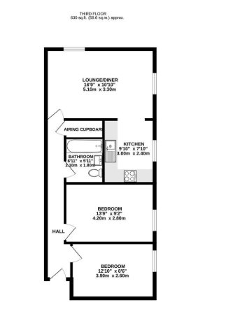
Presenting this charming third floor two bedroom flat situated in a convenient area. This property boasts a spacious living room, kitchen, and a bathroom. The bedrooms are well-proportioned, offering ample space for relaxation. Residents can benefit from the convenience of a garage en-bloc ensuring a stress-free parking experience.
The flat is situated in a prime location, providing easy access to local amenities, transport links, and green spaces. Ideal for first-time buyers, investors, or those looking to downsize, this property offers a comfortable and convenient lifestyle.
Don't miss out on the opportunity to make this lovely flat your new home. Contact us today to arrange a viewing and secure this fantastic property for yourself.
- Chain free
- 16' Lounge
- Two bedrooms
- Share of freehold
- Garage en-bloc
Rooms
Entrance HallDoor to front, entry phone, laminate wood flooring
Lounge 5.1m x 3.3mDouble glazed windows to front and side, electric radiator, laminate wood flooring
Kitchen 3m x 2.4mDouble glazed window to front, wall and base units, space for cooker, stainless steel sink and drainer, space for washing machine, part tiled walls, vinyl flooring
Bedroom 1 4.2m x 2.8mDouble glazed window to side, electric radiator, carpet
Bedroom 2 3.9m x 2.6mDouble glazed window to side, electric radiator, carpet
BathroomPanelled bath with shower above, wash hand basin, low level WC, part tiled walls, vinyl flooring
GarageEn-bloc
