Property Description
**GUIDE PRICE £190,000 - £200,000**
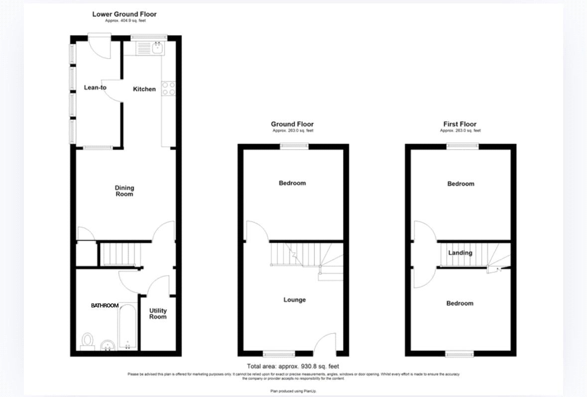
Situated on Beacon Road in Chatham, this three-bedroom end-of-terrace property offers a straightforward opportunity for buyers looking to take on a full refurbishment project.
The accommodation comprises three bedrooms, a reception room, and a kitchen space with scope for complete redesign. As an end-of-terrace home, it benefits from additional side access and a slightly larger footprint than a typical mid-terrace property.
Highly attractive for investors, developers, or first time buyers prepared for slight updating works - Once improved, this property proves as a brilliant opportunity.
Located approximately a 10-minute drive from Chatham railway station, the property provides access to mainline services, along with everyday amenities and local shops within easy reach.
Offered as a project with clear potential, viewing is recommended for those seeking an investment opportunity.
- Excellent refurbishment project with strong potential
- Additional side access
- Ideal for investors, developers, or renovation buyers
- Approximately 10-minute drive to Chatham railway station
- Convenient access to local shops and everyday amenities
