Property Description
Robinson Jackson are delighted to bring to the market this well presented four-bedroom detached family home, ideally located within easy reach of motorway links, Swanley Town Centre, and Swanley Station.
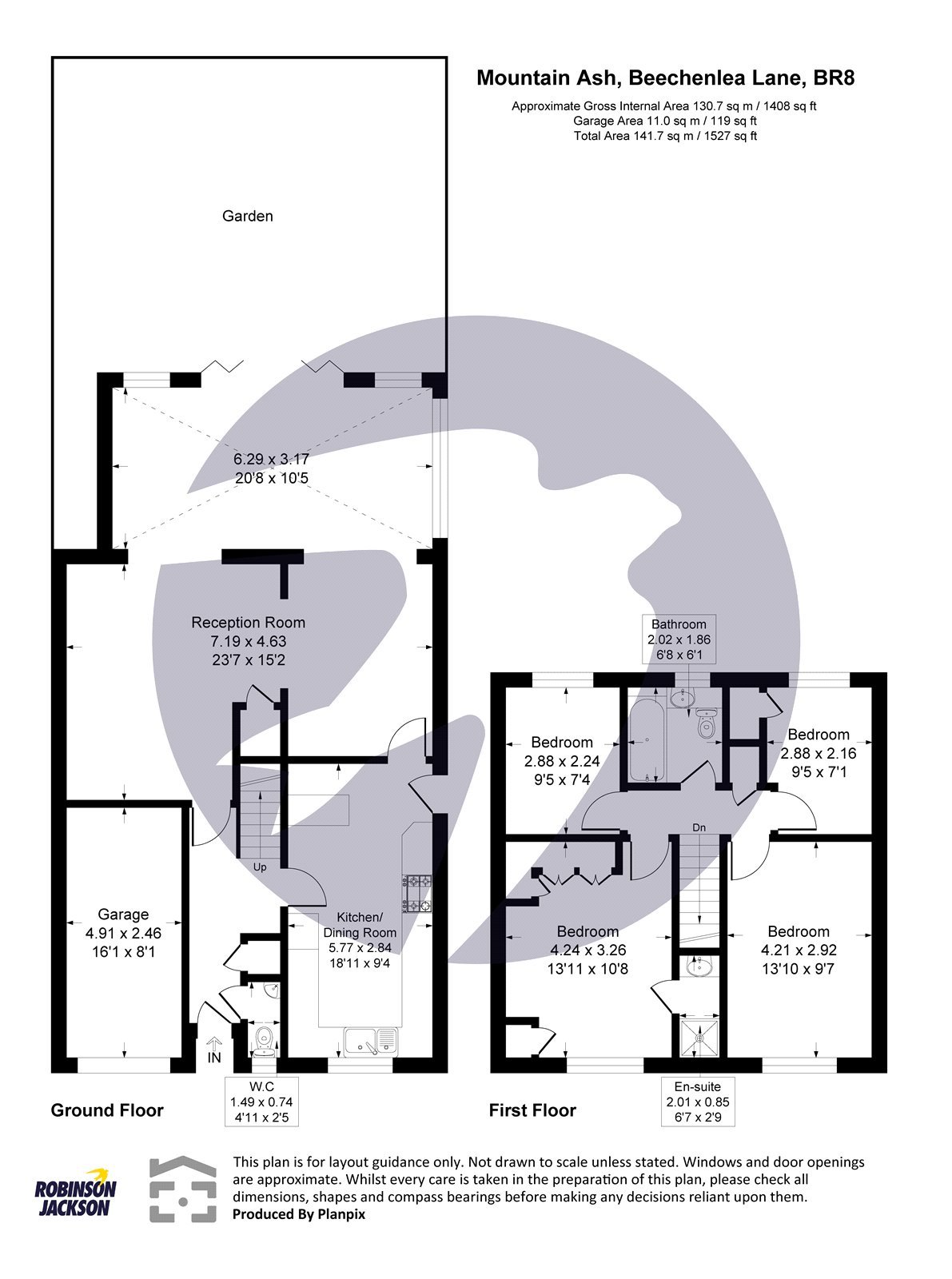
Internal viewing is highly recommended to fully appreciate the space this property has to offer. Upon entering, you are welcomed by a modern kitchen and a convenient ground floor cloakroom. The spacious reception areas flow seamlessly into the conservatory, creating a fantastic space for both everyday living and entertaining.
To the first floor are four well-proportioned bedrooms and a family bathroom. The main bedroom benefits from an en-suite shower with vanity wash hand basin.
Externally, the property boasts a generous rear garden with an additional seating area to the far end, ideal for outdoor relaxation. Further benefits include an integral garage and a driveway providing off street parking.
- Detached House
- Ground Floor Cloakroom
- Spacious Reception Room
- Conservatory
- Kitchen / Dining Room
- Four Bedrooms
- Ensuite Shower
- Family Bathroom
- Generous Rear Garden
- Integral Garage & Driveway
