Property Description
**GUIDE PRICE £240,000 - £260,000**
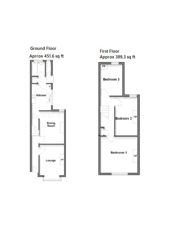
Nestled within a desirable residential area and within walking distance to Rochester train station and local amenities, this charming three-bedroom terraced house offers an excellent opportunity for buyers seeking a well-presented home with no onward chain. Finished in good decorative order throughout, the property provides comfortable, ready-to-move-in accommodation that is ideal for first-time buyers, commuters, or small families.
Upon entering, you are welcomed by two generous reception rooms, offering flexible living spaces perfect for dining, entertaining, or creating a cosy family area. The layout flows naturally and provides plenty of versatility to suit a variety of lifestyles. Additionally, the three bedrooms are well-proportioned, providing comfortable spaces for relaxation, work, or storage.
Outside, the home benefits from two plots, offering additional outdoor space that could be used for gardening, leisure, or potential future enhancements (subject to any necessary permissions).
Overall, this attractive house combines a thoughtful layout, good decorative condition, and a superb location close to essential transport links and amenities—making it a fantastic opportunity in a sought-after area.
- NO CHAIN
- Great First Time Buy
- Good Investment
- Recently Refurbished With New Boiler and Flooring
- Close to the Historic High Street
- 15 Minute Walk to Rochester High Speed Station
