Property Description
Set in a highly sought-after location, this beautifully presented four-bedroom detached house offers the perfect blend of modern living and countryside charm. Boasting picturesque countryside views to the rear, this exceptional home is ideal for families seeking space, comfort, and convenience.
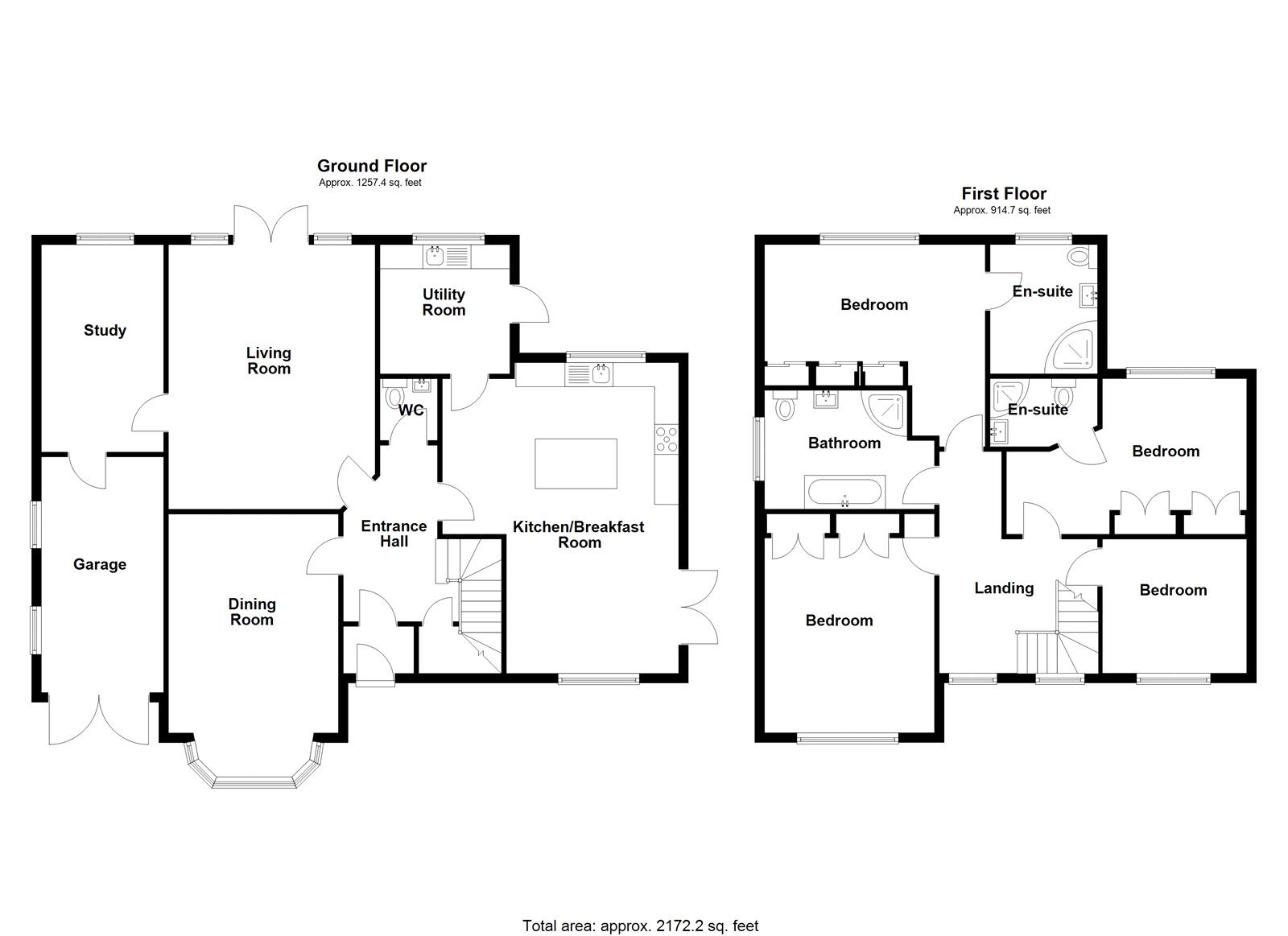
The property features three spacious reception rooms, perfect for entertaining or relaxing, alongside a stylish and well-appointed kitchen. There are three bathrooms, including an en-suite to the master bedroom, ensuring practicality for busy households.
Environmentally conscious buyers will appreciate the addition of solar panels, offering energy efficiency and cost savings.
Outside, the home benefits from ample off-street parking and a generous garden that makes the most of the tranquil surroundings.
With easy access to the A2/M2, this property provides excellent connectivity for commuters while retaining a peaceful rural feel.
This is a rare opportunity to acquire a truly special home in one of the area's most desirable settings.
- Sought after location
- Approximately 2172.2 square feet
- Countryside views to rear
- Solar panels
- Detached
- Electrical vehicle charger
- Ample off street parking
- Easy access to A2/M2
Rooms
HallAmtico flooring, double radiator, under stairs storage cupboard housing meter, door to porch, stairs to first floor.
Ground floor w/c 1.88m x 1.37mTiled flooring, low level w/c, basin with mixer tap.
Lounge 6.22m x 4.11mAmtico flooring, single radiator, double radiator, double glazed window & door leading to rear garden, coved ceiling.
Dining Room 5.56m x 3.48mAmtico flooring, double radiator, gas fire, double glazed bay window to front, coved ceiling.
Study/Office 4.3m x 2.54mCarpet, double radiator, double glazed window to front.
Kitchen 6.17m x 4.45mMarnolian flooring, grantle worktops, island, sink drainer with mixer tap, fridge freezer, dish washer, extractor fan, sapce for range cooker & tiled splash back, double glazed window to front & rear, double glazed door to side,
Utility Room 2.82m x 2.67mMarnolian flooring, wall to base units with roll top work surface over, sink drainer with mixer tap, double glazed window to rear & side, double glazed radiator, space for appliances, door to side.
LandingCarpet, single radiator, double glazed window to front, coved ceiling, loft access.
Bedroom One 4.67m x 2.87mCarpet, built in wardrobes, double glazed window to rear, wall mounted radiator, coved ceiling.
Ensuite Bathroom 2.95m x 2.26mTiled flooring, single radiator, shower cubicle, low level w/c, basin with mixer tap, radiator, partly tiled walls, double glazed window to rear.
Bedroom Two 4.6m x 3.38mCarpet, double radiator, double glazed window to front, coved ceiling, built in wardrobes.
Ensuite Bathroom 1.93m x 1.6mTiled flooring, low level w.c, partly tiled walls, shower cubicle, basin with mixer tap, wall mounted towel rail.
Bedroom Three 4.67m x 2.92mCarpet ,single radiator, built in wardrobes, double glazed window to rear, coved ceiling.
Bedroom Four 3.07m x 2.97mCarpet, single radiator, double glazed window to front, coved ceiling.
Bathroom 3.56m x 2.36mMarmolian flooring, free standing bath with mixer tap, basin with mixer tap, low level w.c, shower cubicle, double glazed window to side, wall mounted towel rail.
Rear gardenPatio area, laid to lawn, flowerbeds to side, decking area, side access.
Garage 4.9m x 2.95mBarn door, wall mounted boiler, window to side, supplied with power & light.
Summer house 3.89m x 3.48mSupplied power, electric supply & telephone line.
