Property Description
Guide Price £475,000-£500,000
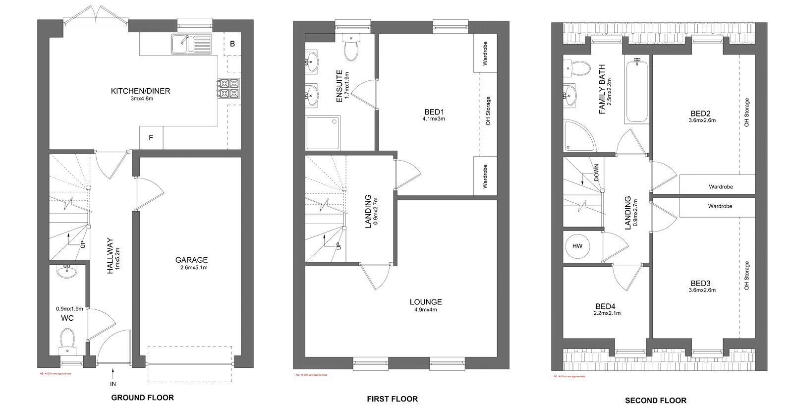
Robinson Jackson are pleased to offer this four-bedroom family home, ideally located for highly regarded Grammar and Primary schools as well as Dartford Mainline Station, making it perfect for families and commuters alike.
Situated within a gated development, the property benefits from a garage and parking, a ground floor WC, and an en-suite to the principal bedroom, offering both comfort and convenience in a secure and highly desirable setting.
- Private Gated Development
- Close to Mainline Station
- Catchment to Popular Schools
- No Chain
- En-Suite to Master Bedroom
- Fitted Storage in Bedrooms
- Ground Floor Wc
- Garage and Parking
