Property Description
Guide Price £375,000-£400,000
Robinson Jackson are delighted to offer this immaculately presented three bedroom family home in the sought after 'Bridge Development' located within close proximity to local amenities & M25/A2.
- Semi-Detached Property
- En-Suite to Master Bedroom
- Ground Floor WC
- Allocated Parking
- Close Proximity to Schools, Local Shop & Bus Stop
- Viewing Highly Recommended
Rooms
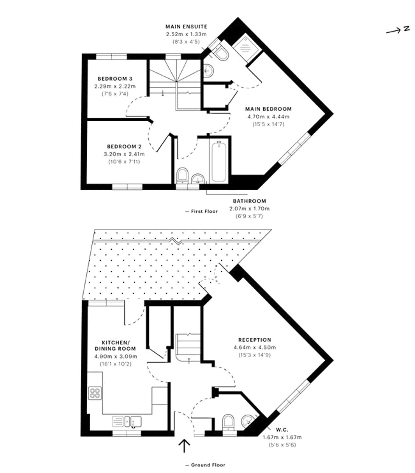
Entrance HallEntrance door. Laminate flooring. Radiator with decorative cover. Stairs to first floor.
Ground Floor WC 1.73m x 1.4mFrosted double glazed window to front. Vinyl flooring. Low level wc. Pedestal wash handbasin. Radiator. Extractor fan.
Living Room 4.65m x 4.5mDouble glazed window to front with remote control blind. Double glazed patio doors to rear with perfect fit integrated blinds. Laminate flooring. Radiator. Premium LED light.
Kitchen Dining Room 4.9m x 3.1mDouble glazed window to front & patio doors to rear with perfect fit integrated blinds. Vinyl flooring. Range of wall & base units incorporating a stainless steel sink with complementary work surfaces. Integrated gas hob & electric oven. Integrated fridge freezer, washing machine & dishwasher. Extractor fan. Storage cupboard. Cupboard housing boiler. Premium LED light.
LandingDouble glazed window to rear. Carpet. Access to loft.
Master Bedroom 4.7m x 4.45mDouble glazed window to front. Carpet. Radiator. Fitted wardrobes. Storage cupboard.
Ensuite Shower Room 2.51m x 1.35mFrosted double glazed window to rear. Tiled floor & walls. Low level wc. Pedestal wash hand basin. Shower cubicle. Storage cabinet. Heated towel rail. Extractor fan.
Bedroom Two 3.2m x 2.41mDouble glazed window to front. Carpet. Radiator.
Bedroom Three 2.29m x 2.24mDouble glazed window to rear. Carpet. Radiator.
Bathroom 2.06m x 1.7mFrosted double glazed window to rear. Tiled floor & walls. Low level wc. Pedestal wash hand basin. Heated towel rail. Storage cabinet. Extractor fan.
