fbpx

4 bedroom house for sale

Highlands Grange, Swanley, Kent, BR8
Freehold, Council Tax Band NA
4 3 2
Ref: SWL240490

Property Description

Prices From £775,000
Located in the New Development of Highlands Grange is this impeccably presented 4 bedroom, 3 Bathroom Family Home, offering an amazing 1,494sq.ft. of well designed living space. Highlands Grange is located a 20 minute walk/1.4 miles from Swanley Station which provides fast services to London Bridge, Charing Cross, Victoria and Blackfriars. Also nearby are the towns of Sidcup, Orpington and Bromley all being around a 10 minute drive and Bluewater just a little longer.

  • New Home
  • Detached
  • 4 Double Bedrooms
  • 3 Bathrooms
  • Living Room And Kitchen/Dining Room
  • Garage
  • Off Street Parking
  • Incentives

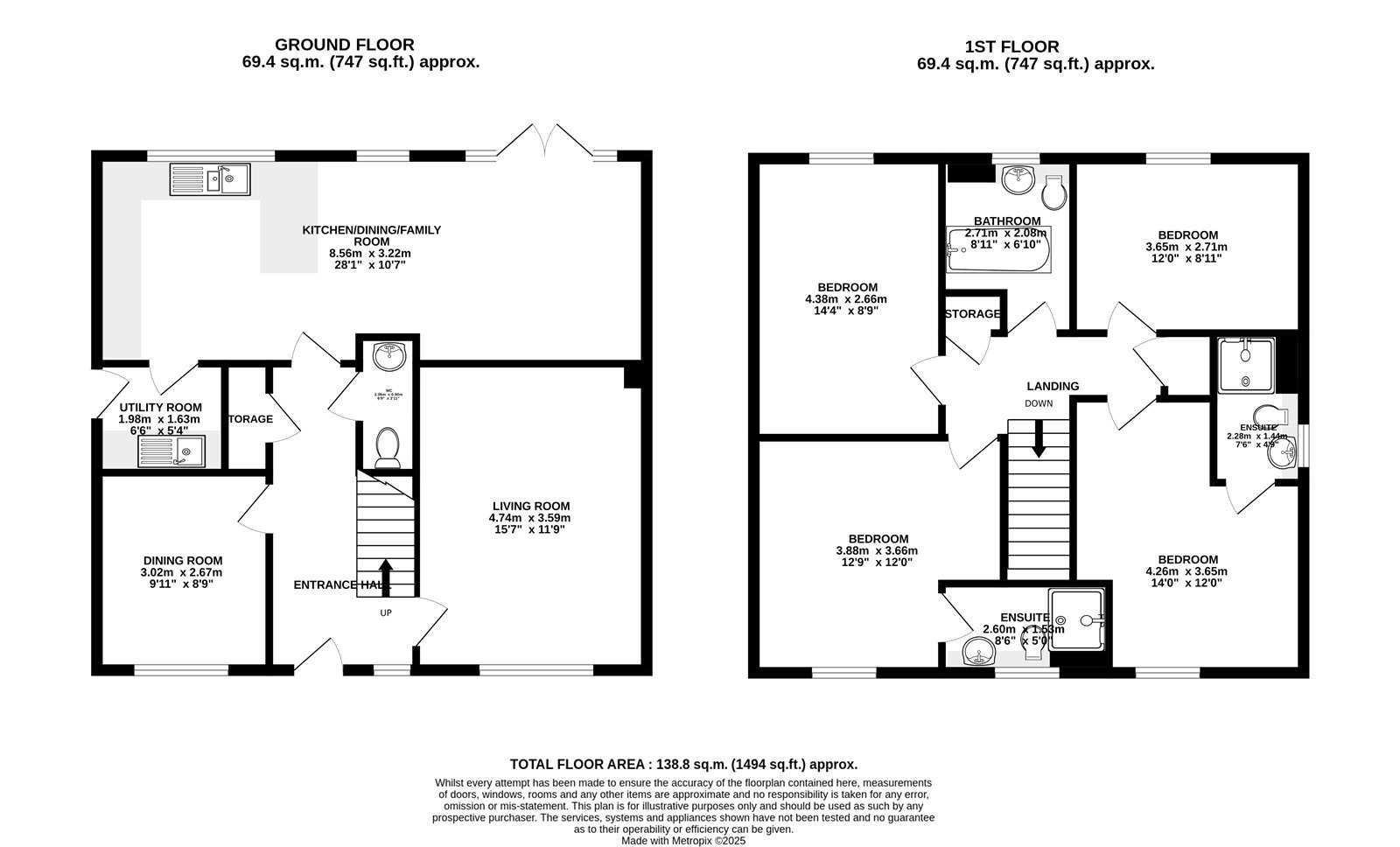
Rooms

Entrance Hall
Kitchen/Family/Dining Room 8.56m x 3.22m
Living Room 4.74m x 3.59m
Dining Room 2.67m x 3.02m
Utility Room 1.98m x 1.63m
Cloakroom 2.06m x 0.90m
Bedroom One 3.65m x 4.26m
Bedroom One en suite 2.28m x 1.44m
Bedroom Two 3.69m x 3.65m
Bedroom Two en suite 2.60m x 1.53m
Bedroom Three 4.38m x 2.66m
Bedroom Four 3.65m x 2.71m
Bathroom 2.71m x 2.08m
Utilities:
Electricity
Ask Agent
Water
Ask Agent
Heating
Ask Agent
Gas
Ask Agent
Sewerage
Ask Agent
Rights & Restrictions:
Is the property listed?
Ask Agent
Are there any restrictions associated with the property?
Ask Agent
Are there any easements, servitudes, or wayleaves?
Ask Agent
Are there any public rights of way across the property or its boundaries?
Ask Agent
Flood and Erosion Risk:
Has there been any flooding in the last 5 years?
Ask Agent
Flooding sources affecting the property:
Ask Agent
Are there any flood defences:
Ask Agent

Request a Valuation

Every year we are invited to value over 10,000 properties for sale or to let. Please request your FREE, no obligation valuation - simply enter your postcode below.