Property Description
Guide price £400,000-£425,000
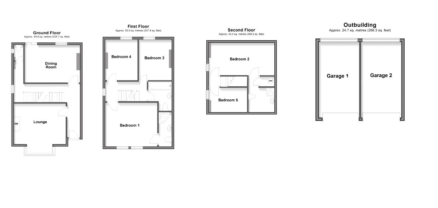
Located on Jersey Road, ME2, this substantial five-bedroom semi-detached property offers approximately 1,733 square feet of well-proportioned accommodation, making it a versatile opportunity for a range of buyers.
The house features four well-sized double bedrooms, providing flexible living arrangements, while the overall layout lends itself well to both residential use and potential investment. A double garage to the rear offers valuable storage or parking options.
Positioned within walking distance of local amenities, the property is conveniently located 0.8 miles from a local secondary school and 0.9 miles from Strood Station, making it well placed for commuting and day-to-day needs.
An excellent opportunity to acquire a spacious property in a well-connected and established location.
- 1,733 square feet
- 0.9 miles to Strood Station
- Four double bedrooms
- Double garage to rear
- Walking distance to local amenities
- 0.8 miles to local secondary school
Rooms
Lounge 3.4m x 4.4mCarpet, radiator, double glazed bay window & door to front.
Kitchen 5.23m x 4.95mTiled flooring, wall to base units with roll top work surface over, sink drainer with mixer tap, island, oven, hob with extractor fan, sliding double doors leading to rear garden, double glazed window to rear.
W/C 1.65m x 1.1mLaminate flooring, low level w/c, partly tiled walls.
First Floor Bedroom One 4.45m x 3.7mCarpet, fire place, double glazed window to front x two.
Ensuite Bathroom 2m x 2.51mTiled flooring, towel rail, shower cubicle, basin with mixer tap.
Bedroom Three 2.84m x 3.38mCarpet, radiator, double glazed window to rear.
Bedroom Four 2.46m x 3.38mCarpet, double glazed window to rear, radiator.
Bathroom 1.37m x 2.84mTiled flooring, heated rail, double glazed window to front, pannelled bath with shower over,fully tiled walls.
Second floor Bedroom Two 5.87m x 2.77mCarpet, radiator, double glazed window to front.
Bedroom Five 1.98m x 3.25mCarpet, double glazed window to front, radiator.
Bathroom 1.88m x 2.36mTiled flooring, heated towel rail, partly tiled walls.
Rear gardenGrass laid to lawn, decked area, rear access.
Double garage to rearUp and over door.
