3 bedroom house for sale

Kettlewell Court, Swanley, Kent, BR8
Freehold, Council Tax Band C
3 1 1

Guide Price £375,000 - £400,000

epc
Ref: SWL230211

Property Description

Guide Price £375,000 to £400,000
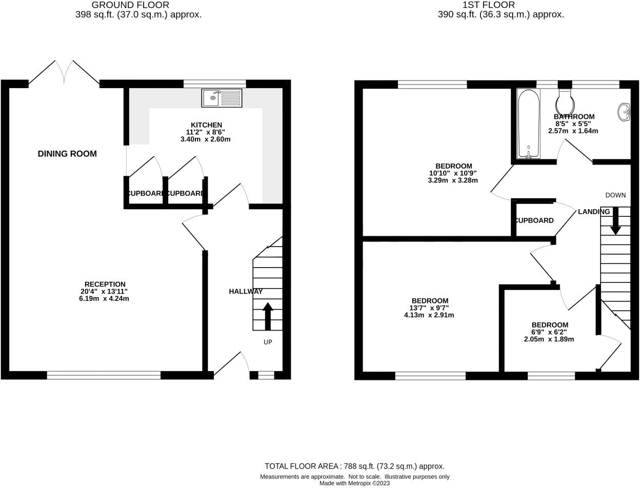
Located within walking distance to Swanley Park, and less than a mile from Swanley Station is this fantastic 3 bedroom family home. Offering to the ground floor a welcoming open plan lounge/dining room with separate kitchen. Whilst upstairs are 3 bedrooms and well appointed bathroom.

Outside is a rear garden with side access and parking nearby.

  • End of Terrace
  • 73.2sq.m (788sq.ft)
  • 3 Bedrooms
  • 6.19m x 4.24m Lounge/Dining Room
  • Close to Schools
  • 0.8 Miles to Station

Rooms

Entrance Hall
Lounge/Dining Room 6.19m x 4.24m
Kitchen 3.4m x 2.6m
First Floor Landing
Bedroom 4.13m x 2.91m
Bedroom 3.29m x 3.28m
Bedroom 2.05m x 1.89m
Bathroom 2.57m x 1.64m
Utilities:
Electricity
mains Supply
Water
mains Supply
Heating
gasCentral
Gas
Ask Agent
Sewerage
mains Supply
Rights & Restrictions:
Is the property listed?
Ask Agent
Are there any restrictions associated with the property?
Ask Agent
Are there any easements, servitudes, or wayleaves?
Ask Agent
Are there any public rights of way across the property or its boundaries?
Ask Agent
Flood and Erosion Risk:
Has there been any flooding in the last 5 years?
Ask Agent
Flooding sources affecting the property:
Ask Agent
Are there any flood defences:
Ask Agent

Request a Valuation

Every year we are invited to value over 10,000 properties for sale or to let. Please request your FREE, no obligation valuation - simply enter your postcode below.