Property Description
1930's built extended terraced house located in a quiet cul de sac.
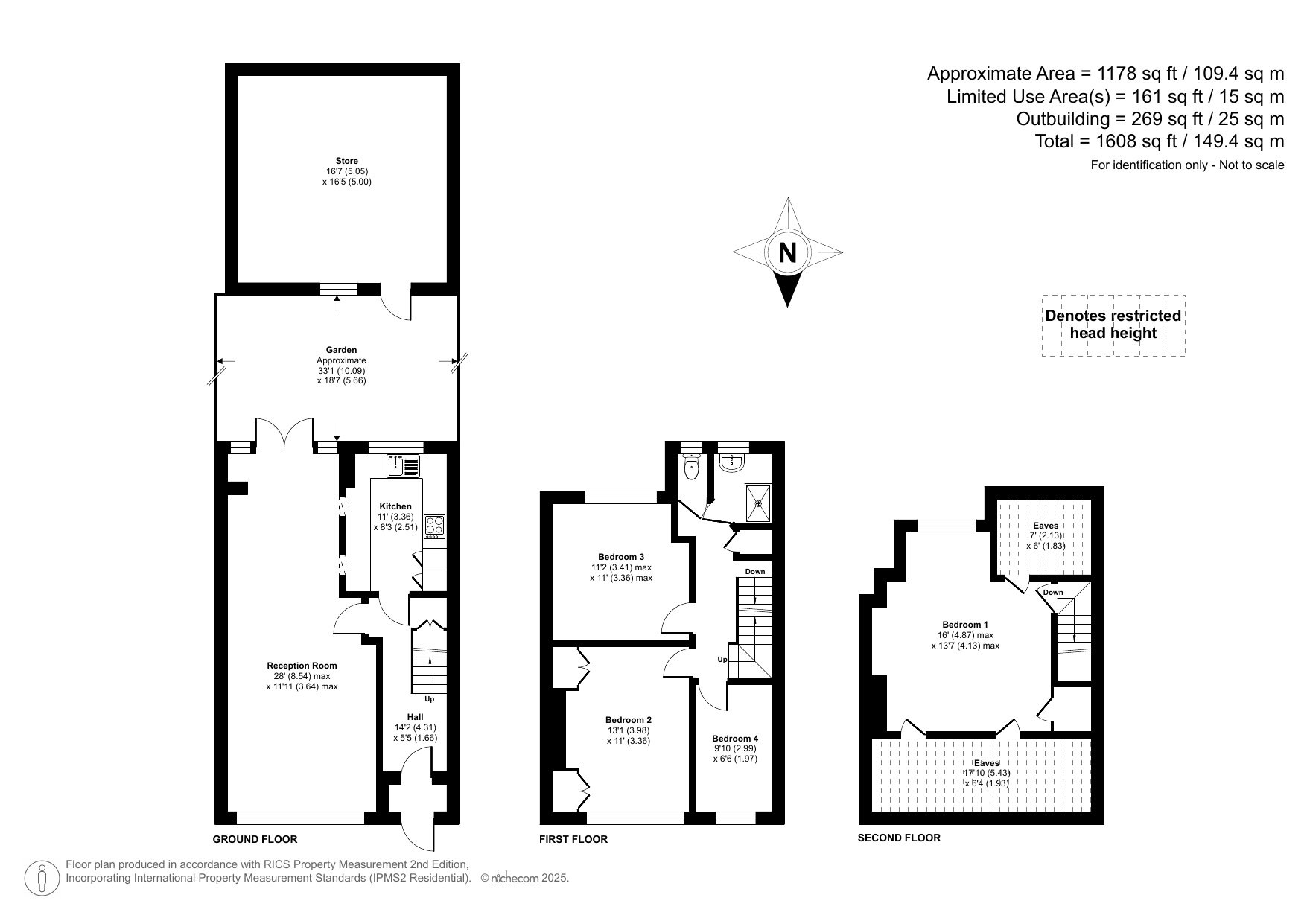
Benefitting from four bedrooms, through lounge, front and rear garden, garage and being sold with no onward chain.
Well located for Bell Green retail park, Lower Sydenham station and within walking distance of the award winning Mayow Park.
- Extended
- Cul de sac location
- Four good sized bedrooms
- Garage
- Through Lounge
- Front and rear garden
- First floor shower room with separate wc
- No chain
- Well located for Bell Green retail park and Lower Sydenham station and within walking distance of the award winning Mayow Park
Rooms
Entrance PorchPart opaque double glazed door to front, vinyl flooring, water tap.
Entrance HallOpaque double glazed entrance door, radiator, carpet, understairs storage cupboard, textured ceiling.
Through LoungeLounge- Double glazed bay window to front, radiator, coal effect gas fire with insert and hearth and wood surround, dado rail, carpet, coved ceiling. Dining Room- Double glazed double doors to rear, radiator, carpet, breakfast bar, coved ceiling.
KitchenDouble glazed window to rear, range of fitted white wall and base units with work surface over, one bowl stainless steel sink unit with mixer tap, oven, gas hob and extractor fan to remain, space for fridge/freezer, plumbing for dish washer, wall mounted boiler, tiled splash back, vinyl flooring.
LandingStorage cupboard, carpet, textured ceiling, stairs up to bedroom one.
Bedroom TwoDouble glazed window to front, radiator, full length fitted wardrobes, carpet, textured ceiling.
Bedroom ThreeDouble glazed window to rear, radiator, full length fitted wardrobes, carpet, coved and textured ceiling.
Bedroom FourDouble glazed window to front, radiator, dado rail, carpet, coved ceiling.
Bedroom One (Loft Room)Double glazed window to rear, storage cupboard, eaves storage, carpet.
Rear GardenPaved, astro turf, path to rear, outside water tap.
Garage Front GardenMainly paved with decorative stone border, gate.
