Property Description
A well-presented three-bedroom semi-detached house offering spacious and versatile living accommodation. The property features two reception rooms, side access, and a well-maintained rear garden, along with the added benefit of off-street parking.
Ideally located close to Danson Boating Lake and within easy reach of highly regarded schools, including Harris Academy and Bexley Grammar School, this home is in very good condition throughout and is perfect for families or those seeking a convenient and desirable location.
- Side access providing extra convenience
- Close to top-rated schools including Harris Academy and Bexley Grammar School
- Two bright and versatile reception rooms, perfect for family living
- Prime location near the scenic Danson Boating Lake
- Beautifully maintained rear garden ideal for relaxing or entertaining
Rooms
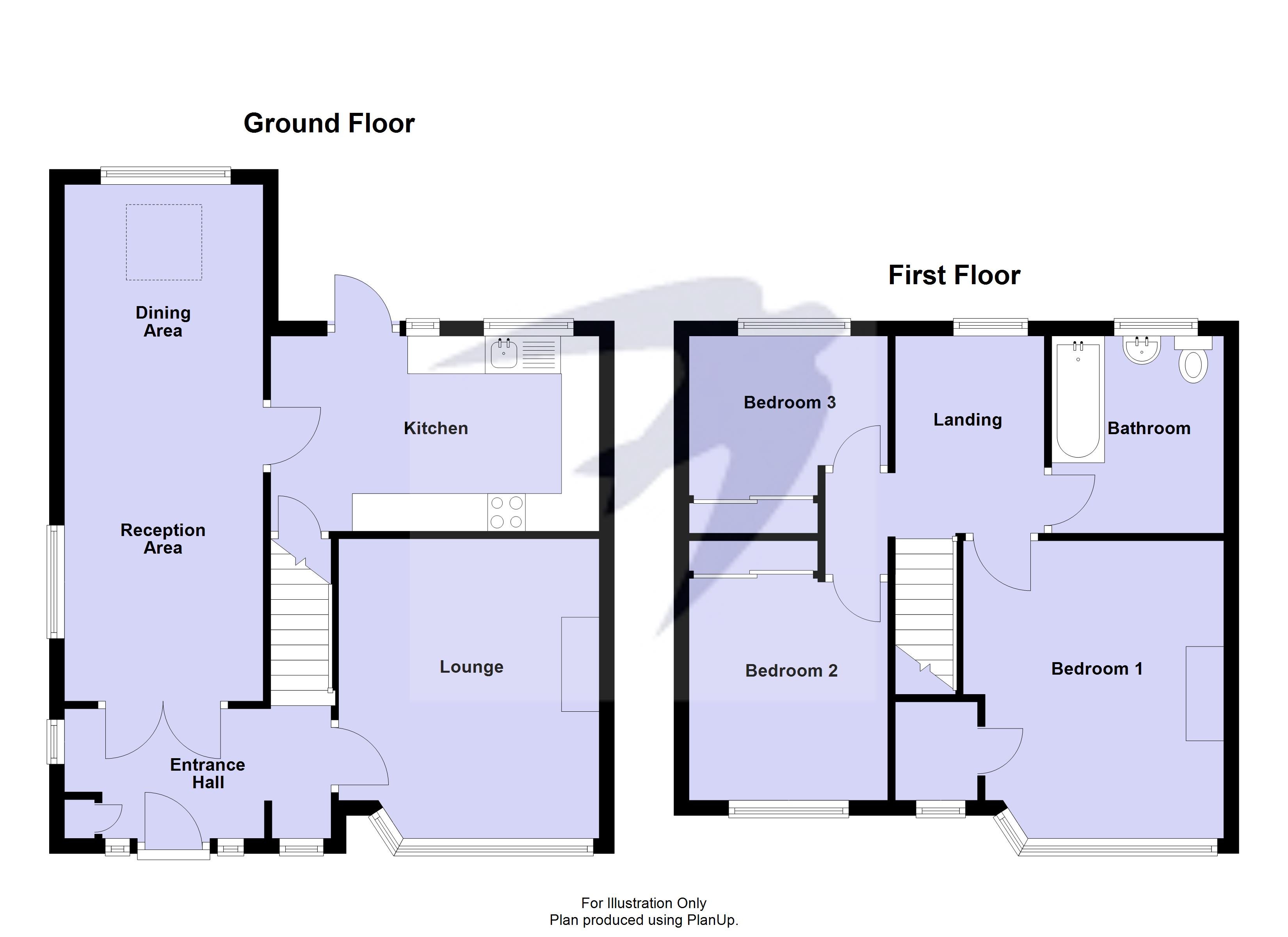
Entrance Hall 3.86m x 1.73mDouble glazed entrance door to front, double glazed frosted windows to front and side, storage cupboard, stairs to first floor, radiator, laminate flooring.
Lounge 3.96m x 3.45mDouble glazed window to front, feature fireplace, radiator, laminate flooring.
Dining Room 6.86m x 2.64mDouble glazed window to rear and side, two radiators, laminate flooring.
Kitchen 4.34m x 2.6mTwo double glazed windows to rear, double glazed door to rear, matching range of wall and base units incorporating cupboards, drawers and worktops, inset ceramic sink unit with drainer and mixer tap, space for fridge/freezer, integrated dishwasher, washing machine, oven and hob with filter hood above, wall mounted boiler, understairs storage cupboard, laminate flooring.
LandingDouble glazed window to rear, radiator, carpet, access to loft.
Bedroom One 4.1m x 3.45mDouble glazed bay window to front, radiator, carpet, built in walk in wardrobes, with double glazed window to front and fitted shelves and rails, .
Bedroom Two 3.28m x 2.67mDouble glazed window to front, built in wardrobe, radiator, carpet.
Bedroom Three 3.28m x 2.64mDouble glazed window to rear, built in wardrobe, radiator, laminate flooring.
Bathroom 2.62m x 2.29mDouble glazed frosted window to rear, panelled bath with shower over, pedestal wash hand basin, low level WC, chrome heated towel rail, part tiled walls, tiled flooring.
Rear GardenPatio area to front and rear, laid to lawn, established borders, shed, side gate, outside tap, light and power socket.
Front GardenOff street parking.
