Property Description
Charming Victorian Style 2 Bedroom Cottage with Driveway in Walderslade offered with NO ONWARDS CHAIN
A rare opportunity to purchase a Victorian-style cottage in Walderslade. Properties of this character and size seldom become available. With a private driveway to the front and a thoughtfully designed layout, this home blends period charm with practical modern living.
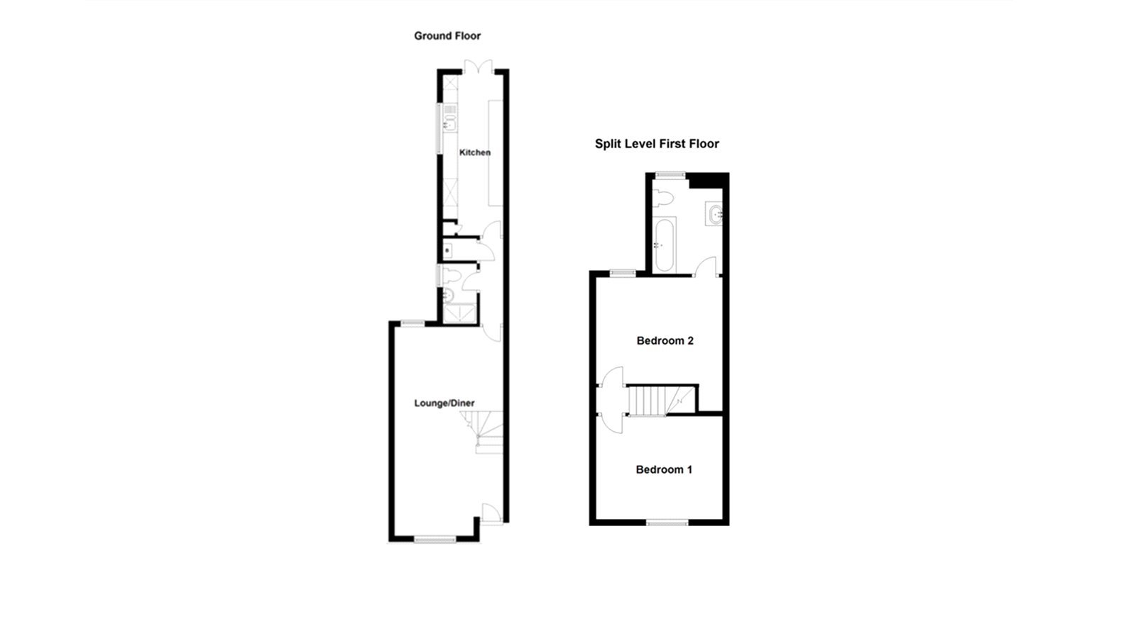
On entry, you are welcomed into the dining room, which flows into the front lounge, creating a warm and inviting living space. From the hallway, there is a convenient downstairs shower room, while to the rear sits a well-proportioned kitchen opening onto the generous garden perfect for entertaining or relaxing outdoors.
Upstairs, the property offers two spacious double bedrooms, with the main bedroom featuring its own en suite bathroom.
With its distinctive Victorian character, rare availability in Walderslade, and the bonus of a driveway and garden, this is a truly unique home not to be missed.
- Ideal first purchase
- Driveway
- Large garden
- 2 bathrooms
- Popular location
- Cottage style
