Property Description
GUIDE PRICE £270,000-£300,000
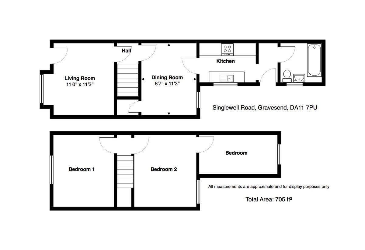
Located on Singlewell Road in Gravesend, this well-presented mid terrace property offers adaptable accommodation, ideal for a range of buyers including first-time purchasers, families or investors. The home is in good condition throughout and benefits from a flexible layout.
The ground floor comprises a hallway leading to a comfortable living room positioned to the front, providing a bright and welcoming space to relax. To the rear, there is a separate dining room. Beyond this, the kitchen is positioned at the back of the property and provides a practical layout with access to the garden. A ground floor bathroom completes this level.
Upstairs, the property features two well-proportioned bedrooms, both offering good space for furnishings and natural light.
Externally, the property benefits from a rear garden measuring approximately 50ft, providing a great outdoor space for relaxing, entertaining or further landscaping.
Overall, this is a well-maintained home offering flexible living arrangements and good outdoor space, all within a convenient and well-connected location.
- 2/3 bedroom mid terrace home
- Flexible layout with separate dining room
- Good condition throughout
- Ground floor bathroom
- Approx. 50ft rear garden
- Popular residential location
Rooms
Lounge 3.35m x 3.43mDouble glazed bay window to front. Laminate floor. Radiator. Feature fire.
Dining Room 3.43m x 2.62mDouble glazed window to rear. Carpet. Radiator.
KitchenDouble glazed window to side. Tiled floor. Integrated sink, oven. Freestanding washing machine.
GF BathroomDouble glazed frosted window to rear. Vinyl floor. Tiled walls. Low level WC. Wash hand basin. Bath with overhead shower.
Master BedroomDouble glazed window to front. Carpet. Radiator. Feature fireplace.
Bedroom 2Double glazed window to rear. Carpet. Radiator. Feature fireplace.
Bedroom 3Double glazed window to rear. Carpet. Radiator.
