Property Description
Guide Price £400,000 to £425,000
Located a short walk to Swanley station is this fantastic larger than average family home. Providing 3 bedrooms and family bathroom complete with 4 piece bathroom suite to the first floor. Whilst the ground floor offers a great size open plan lounge/dining room and well equipped kitchen. Outside are both front and rear gardens, the rear offering access to a garage accessed by service road. The current owner has completed much updating to include new double glazing, electrical wiring and heating system. If you are looking for a great family home that is within the catchment area for Dartford Grammar school, convenient for the London commute and walking distance to the ton centre, look no further.
- 3 Bedrooms
- 4 Piece bathroom
- Open Plan Lounge/Dining Room
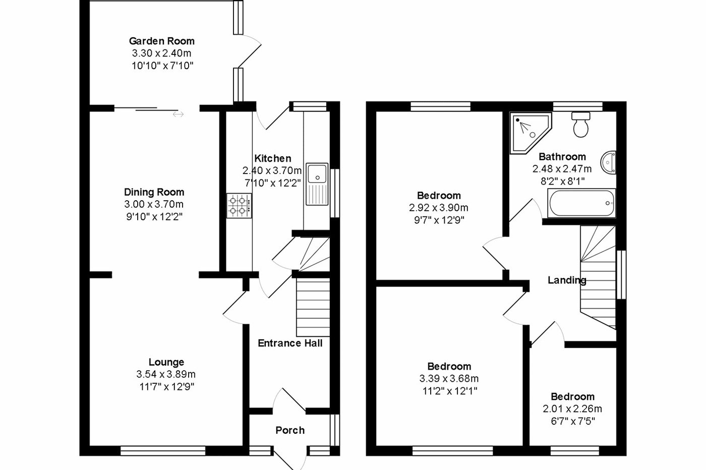
- 974sq.ft Living Space
- Garage
- West Facing Rear Garden
- Walking Distance to Station
Rooms
PorchDouble glazed door to front and side.
Entrance HallDoor and glazed light to porch. Access to lounge, kitchen and stairs to first floor.
Lounge 3.69m x 3.54mDouble glazed bow window to front. Radiator. Open plan to dining area.
Dining Area 3.64m x 3.0mDouble glazed patio doors to garden room. Radiator. Open plan to lounge.
Garden Room 3.3m x 2.39mGlazed to rear with door to side.
Kitchen 3.54m x 2.4mDouble glazed window and door to rear. Range of matching wall and base cabinets with countertop over with inset sink/drainer. Integrated oven and gas hob. Space for washing machine and fridge/freezer. Pantry cupboard.
First Floor LandingDouble glazed window to side. Access to bedrooms, bathroom and loft.
Bedroom One 3.68m x 3.39mDouble glazed window to front. Radiator.
Bedroom Two 3.58m x 2.84mDouble glazed window to rear. Radiator.
Bedroom Three 2.26m x 2.01mDouble glazed window to front. Radiator.
Bathroom 2.47m x 2.47mOpaque double glazed window to rear. Offering a 4 piece bathroom suite comprising; Large enclosed cubicle shower, Enclosed panelled bath with shower over, wash basin and low level wc. Heated towel rail.
