Property Description
Situated in the heart of the sought-after village of Cliffe, this well-presented home on Swingate Avenue offers spacious and versatile accommodation extending to approximately 1,265.9 sq ft.
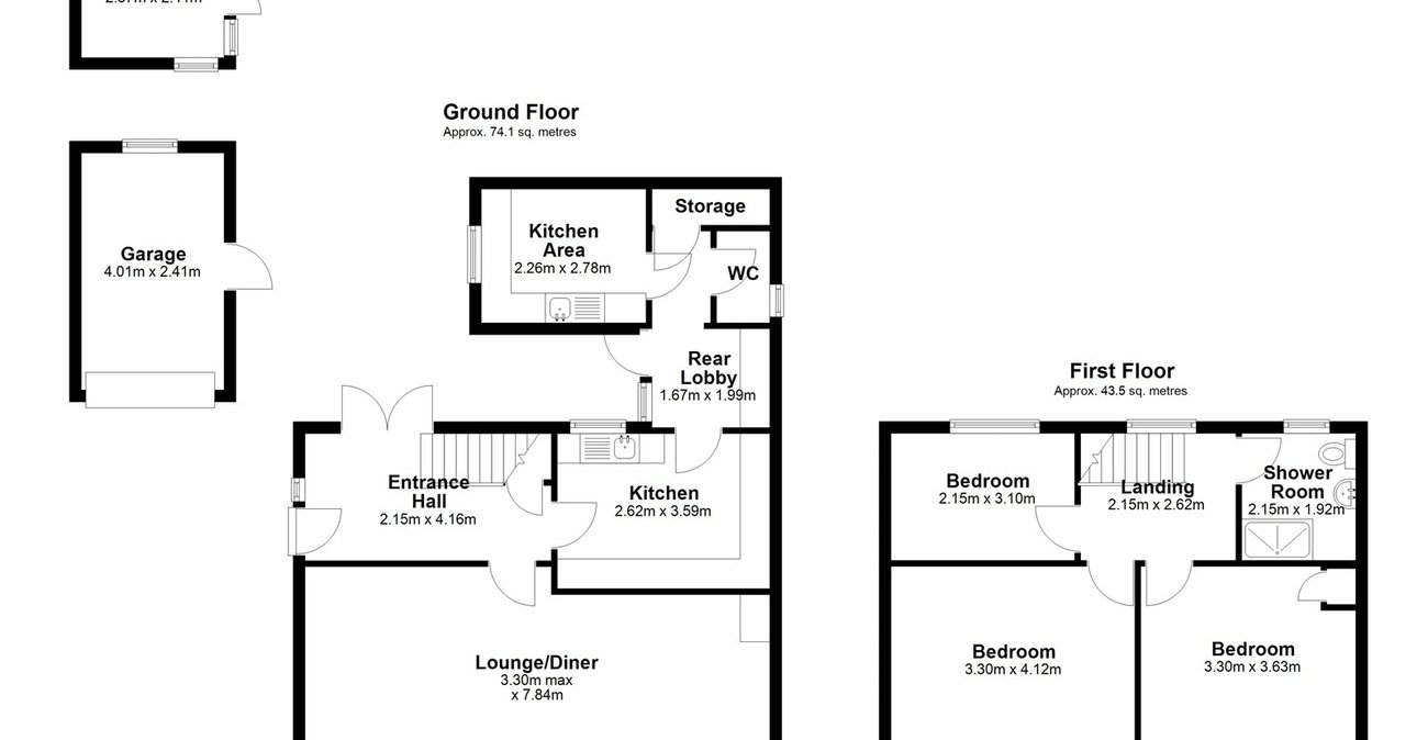
The ground floor features a welcoming entrance hall leading through to a generous lounge/diner, ideal for both everyday living and entertaining. The kitchen is well proportioned and is complemented by the convenience of a ground floor W.C, adding practicality for family life and guests alike.
Upstairs, the property boasts three sizeable bedrooms, all offering comfortable living space, along with a shower room accessed from the central landing.
Externally, the home benefits from a private driveway and garage, providing ample parking and storage, while a separate garden room adds further flexibility for home working, hobbies or relaxation.
Set within a popular village location, the property enjoys a blend of community atmosphere and accessibility, making it an excellent choice for families, professionals or those looking to enjoy village living with space to grow.
- 1265.9 fq ft
- Village location
- Driveway and garage
- Three sizeable bedrooms
- Ground floor W.C
Rooms
Ground floor w/c 1.1m x 1.63mLaminate flooring, single glazed window.
Lounge 3.43m x 7.8mCarpet , double glazed window to front x two, radiator.
Kitchen 3.56m x 2.8mTiled flooring, wall to base units with roll top work surface over, double glazed window to rear, intergrated oven, grill with extractor fan, sink drainer with mixer tap, double glazed door leading to rear garden.
Utility Room 2.9m x 2.34mLaminate flooring, double glazed window to rear, cupboards.
Bedroom One 3.5m x 2.29mCarpet, built in wardrobes, double glazed window to front.
Bedroom Two 3.4m x 3.1mCarpet, double glazed window to front, built in wardrobes, radiator.
Bedroom Three 3.4m x 2.06mCarpet, double glazed window to rear, radiator.
Bathroom 2m x 2.29mLaminate flooring, walk in shower, basin with mixer tap, low level w/c, heated towel rail, double glazed window.
Rear gardenGrass laid to lawn, summer house with hot tub.
GarageUp and over door, power supply.
