Property Description
** GUIDE PRICE £500,000 to £550,000 **
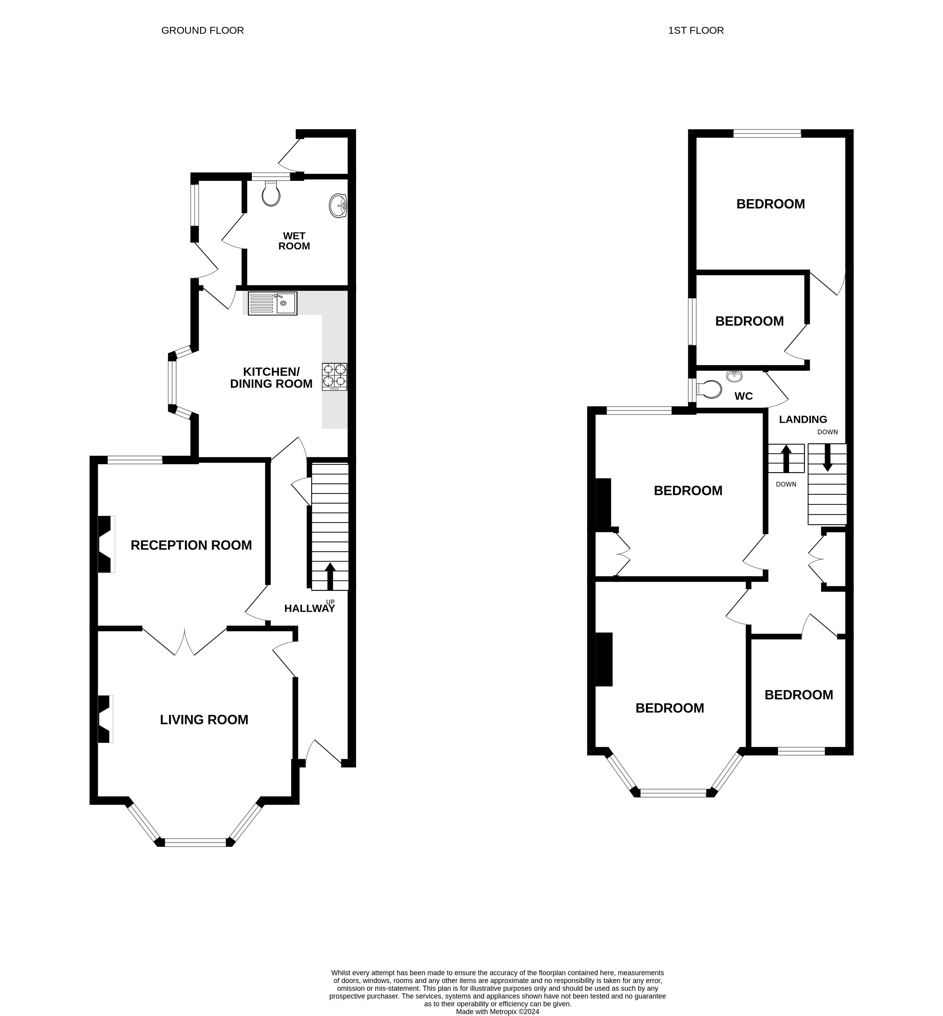
A charming five bedroom, two reception room family home, which is convenient for Plumstead station as well as local shops, schools and amenities.
- Two Reception Rooms
- Fitted Kitchen/Diner
- Ground Floor Wet Room
- First Floor WC
- Double Glazing
- Central Heating
Rooms
Entrance Hall:Stairs to first floor, laminate flooring.
Living Room: 4.65m x 4.32mGas fire with wooden mantle and tiled hearth. Partition doors to dining room, laminate flooring.
Dining Room 12 x 4.32mGas fire with wooden mantle and tiled hearth. Double glazed window, laminate flooring.
Kitchen/Breakfast Room 3.76m x 3.63mFitted with a range of wall and base units with complementary work surfaces, spaces for appliances, vinyl flooring.
Ground Floor Wet Room:Fitted with a low level WC, wash hand basin, wall mounted shower and shower seat, tiled walls, vinyl flooring.
LandingAccess to loft, laminate flooring.
Bedroom 1 4.57m x 3.66mCarpet as laid, double glazed bay window.
Bedroom 3 3.33m x 3.23mCarpet as laid, double glazed window.
Bedroom 2 3.6m x 3.4mCarpet as laid, double glazed window.
Bedroom 4 2.44m x 2mCarpet as laid, double glazed window.
Bedroom 5 2.34m x 2.03mCarpet as laid, double glazed window.
First floor cloakroomFitted with a low level WC and wash hand basin. Frosted double glazed window.
GardenA low maintenance paved garden with an external storage cupboard.
