Property Description
Guide Price £400,000
Located in the sought after village of Crockenhill, with cherished amenities including pub, post office and schools as well as being just a miles walk to Swanley station is this impressively updated period cottage. Since owning this fabulous home, the vendors have updated throughout including a full electrical rewire, the installation of a full central heating system, new kitchen, updated bathroom and full redecoration. Outside the garden has been landscaped to provide a choice of terraced areas and a wonderful real grass lawn tot he rear and off street parking to the front. If you are looking for a period home, close to schools, shops and a station that has sub 30 minute access to London, look no further.
- 2 Double Bedrooms
- Separate Lounge and Dining Rooms
- Secluded Rear Garden
- Fully Rewired
- Updated Heating System
- Private Driveway
- 1.0 Mile/1.6km Walk to Swanley Station
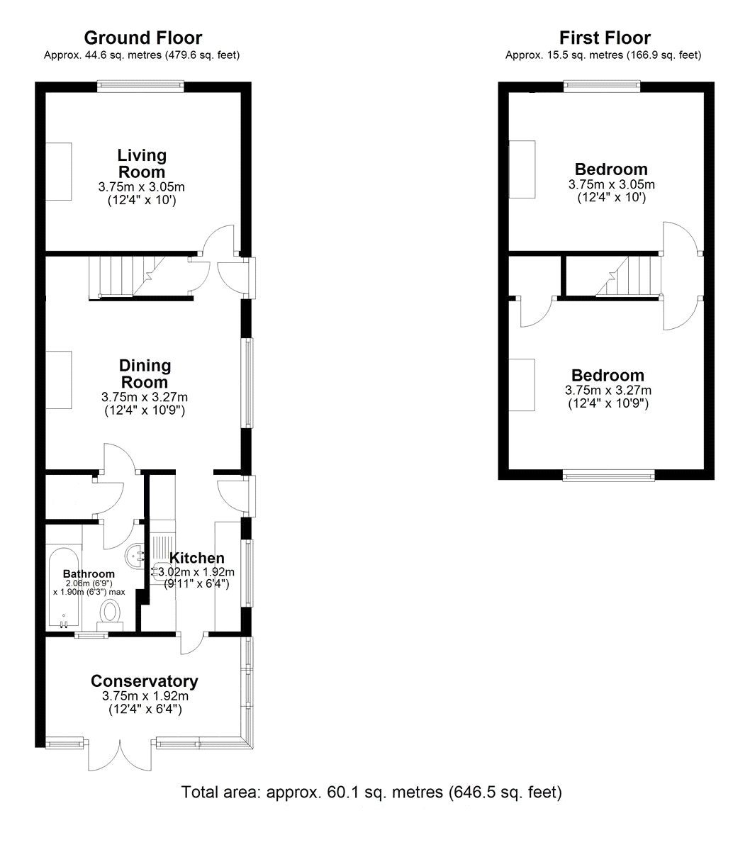
Rooms
Entrance AreaMaking way to reception rooms. Storage cupboard.
Living Room 3.76m x 3.05mDouble glazed window to front. Feature fireplace with open fire inset. Radiator.
Dining Room 3.75m x 3.27mDouble glazed window to side. Feature fireplace with open fire inset. Radiator. Stairs to first floor. Open to kitchen.
Kitchen 3.02m x 1.93mDouble glazed window to side. Doors to side and rear. Base cabinets with wooden countertop over and sink/drainer inset. Integrated oven and hob. Space for washing machine and fridge/freezer.
Conservatory 3.76m x 1.93mDouble glazed windows to rear and side with French doors to garden.
HallwayProviding access to bathroom. Storage cupboard.
Ground Floor Bathroom 2.06m x 1.9mOpaque double glazed window to rear. Enclosed panelled bath with glass screen and shower over. Wash basin. Low level wc. Heated towel rail.
First FloorProviding access to bedrooms.
Bedroom One 3.76m x 3.28mDouble glazed window to rear. Radiator. Walk-in wardrobe with loft access.
Bedroom Two 3.76m x 3.05mDouble glazed window to front. Radiator
