Property Description
GUIDE PRICE £350,000 - £400,000
This immaculately presented and thoughtfully extended three-bedroom mid-terrace home offers generous living space, modern finishes, and excellent practicality, making it ideal for families and buyers seeking a home ready to move straight into.
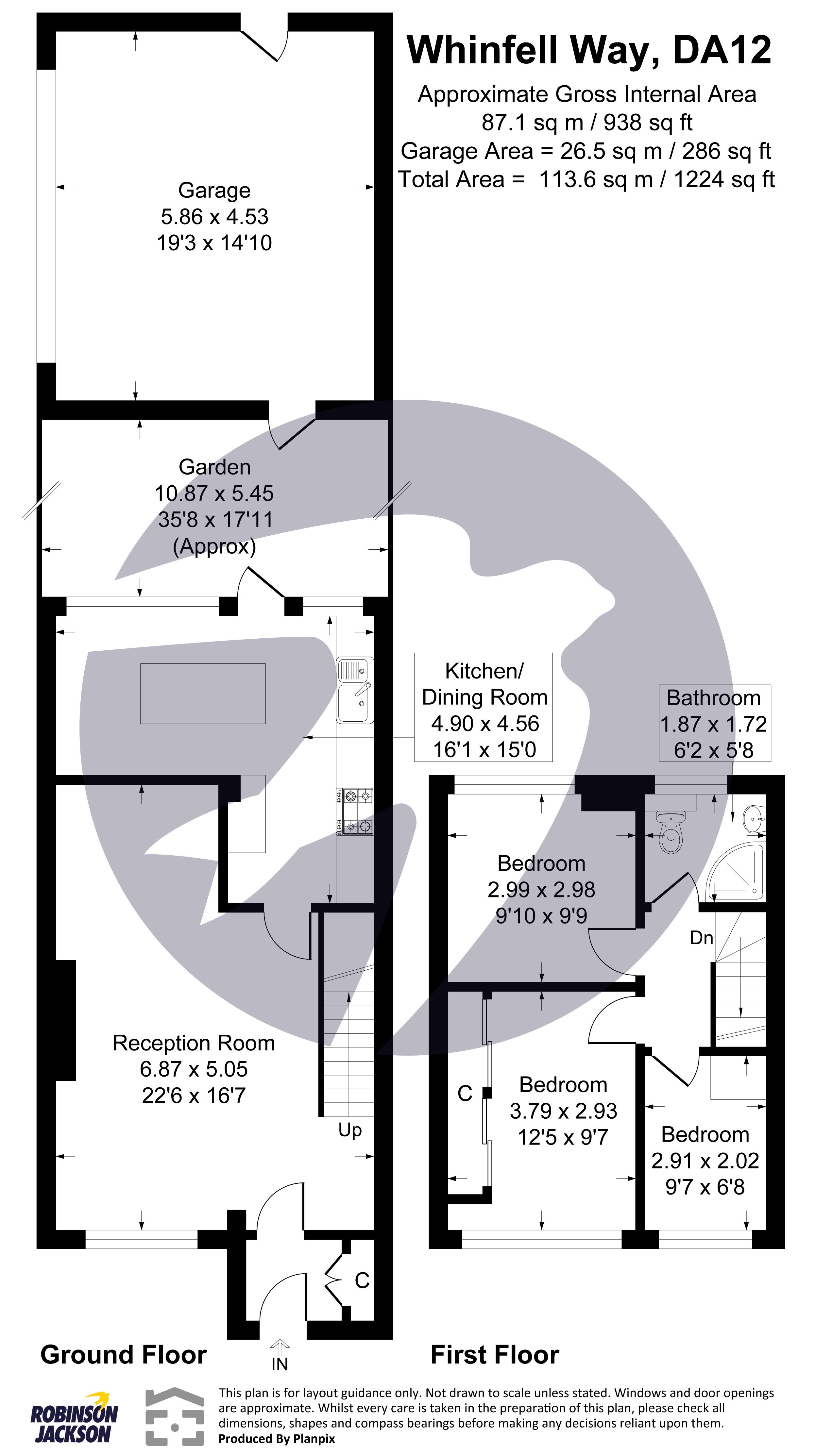
The property welcomes you via a useful front porch, leading into a spacious open-plan lounge that provides a bright and comfortable setting for everyday living and entertaining. To the rear, the home has been extended to create a large kitchen/diner, beautifully designed to offer both functionality and sociable space, with ample room for dining and family gatherings.
Upstairs, there are three well-proportioned bedrooms, with the principal bedroom benefiting from built-in wardrobes. The accommodation is completed by a stylish, modern shower room, which has been designed with flexibility in mind and offers space to install a bath if preferred.
Externally, the landscaped rear garden has been finished with contemporary porcelain tiling for a clean, low-maintenance finish, and includes a heated outdoor dog house that can remain if desired. The garden also provides access to a double garage, along with additional hard-standing parking to the rear.
Offered for sale with no forward chain, this superb home combines space, presentation, and convenience, and is ready for its next owners to enjoy.
- GUIDE PRICE £350,000 - £400,000
- Desired Residential Location
- Quiet Walkway
- Extended to Rear
- Porch to Front
- Immaculately Presented Throughout
- Double Garage and Hard Standing Parking to Rear
- No Forward Chain
Rooms
Porch 1.7m x 1.27mWood floor. Spotlights. Storage cupboarding housing electric meters and fuse board.
Lounge 6.83m x 5.03mWood floor. Double glazed window to front. Radiator to front. Feature wall. Fireplace to remain. Carpet to remain. Radiator to side. Understairs cupboard housing gas meter. Stairs to first floor.
Kitchen 4.88m x 4.57mWood floor. 2 x Double glazed windows to rear. Double glazed door to rear. Spotlights. Radiator to side. Wall and base level units with worksurfaces over. Integrated oven, 5 ring gas hob with extractor fan over. Sink and drainer unit with mixer tap over. Tiled backsplash. All appliances to remain.
Landing 2.1m x 2mWood floor. Loft hatch.
Master Bedroom 3.78m x 2.4mCarpet. Double glazed window to front. Radiator to front. Built in wardrobe with mirrored front.
Bedroom 2 2.97m x 2.97mCarpet. Double glazed window to rear. Radiator to rear.
Bedroom 3 2.9m x 2mCarpet. Double glazed window to front. Radiator to front.
Bathroom 1.85m x 1.68mTiled floor and walls. Double glazed frosted window to rear. Heated towel rail to side. Pedestal basin. Low level WC. Corner shower with waterfall shower head. Glass doors. Spotlights.
