Property Description
*** Guide Price £425,000-£450,000 ***
Spacious end of terraced house well located for Sydenham and Forest Hill stations.
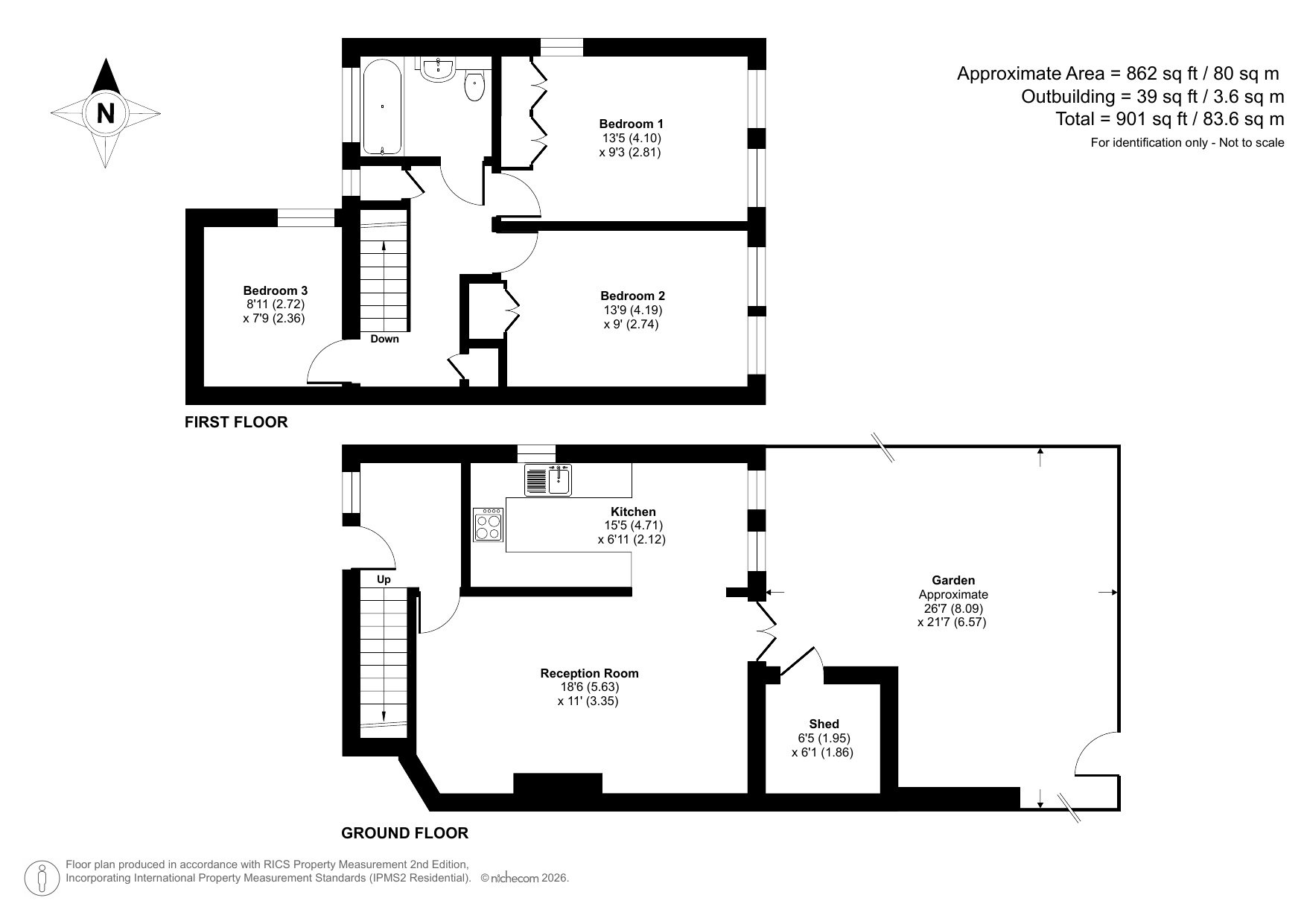
Benefitting from three double bedrooms, 18' lounge, private rear garden and being sold with no onward chain.
Ideal positioned for Sydenham station and high street and Forest hill station and high street.
Within a short walk of the award winning Mayow Park.
- Freehold
- End of terrace house
- Total floor area 80sqm
- 18' lounge
- Ample storage
- Three double bedrooms
- Rear garden
- No chain
- Ideally located for Sydenham high street and station and Forest Hill high street and station
- Within a short walk of the award winning Mayow Park
Rooms
Entrance HallPart opaque double glazed entrance door, opaque double glazed window to front, radiator, laminate flooring, spotlights.
LoungeDouble glazed double doors to garden, radiator, laminate flooring, picture rail, coved ceiling with spotlights, entrance to kitchen.
KitchenDouble glazed window to side, Part opaque double glazed door to garden, range of fitted wall and base units with work surface over, tiled splash back, wall mounted boiler, space for range cooker, extractor fan, plumbing for washing machine, tiled flooring, spotlights.
LandingDouble glazed window to front, radiator, two storage cupboards, carpet.
Bedroom OneDouble glazed windows to rear and side, radiator, fitted wardrobes, laminate flooring.
Bedroom TwoDouble glazed window to rear, radiator, built in wardrobe, laminate flooring, picture rail.
Bedroom ThreeDouble glazed window to side, radiator, laminate flooring, picture rail.
BathroomOpaque double glazed window to front, heated towel rail, three piece bathroom suite comprising of: panelled bath with mixer tap and shower attachment, inset wash hand basin with mixer tap and vanity unit under, enclosed low level wc, tiled flooring, part tiled walls, extractor fan, textured ceiling.
Rear GardenDecked area with steps down to garden, outside storage, mainly paved with raised flower beds.
