Property Description
Guide Price - £600,000 - £650,000
Modern Family Living in a Sought-After Wigmore Location
This spacious detached family home offers approximately 1,603sqft of modern living space, designed for comfort and versatility. The ground floor features a flexible study/4th bedroom, a playroom off the lounge—ideal for children's activities—and a bright conservatory that provides a tranquil space to relax and enjoy views of the garden.
The property boasts a large rear garden complete with outbuildings, offering potential for a home office, studio, or additional storage. A double garage and in-and-out driveway provide ample parking and ease of access.
Ideal Location for Families and Commuters
Situated in the sought-after Wigmore area, this home is within walking distance of top-rated schools including Wigmore Primary School and Wigmore High School, both part of the Wigmore School Academy Trust . Local amenities are conveniently close, with the Wigmore Village Shop offering everyday essentials and locally produced goods . The Wigmore Community Centre provides a hub for various activities and events, fostering a strong sense of community.
Excellent Transport Links
Commuters will appreciate the excellent access to the M2, facilitating smooth car journeys into London and beyond. The nearby Cheshunt railway station offers fast services into London Liverpool Street, making this location ideal for professionals seeking convenient travel options.
- Approx. 1,603 sq ft of modern living throughout
- Ground-floor study/4th bedroom for flexible use
- Playroom off the lounge, ideal for children’s activities
- Bright conservatory space, perfect for relaxation
- Large rear garden with outbuildings—great for office, studio, storage, or play
- Walking distance to top-rated schools and local amenities including primary, secondary, and nurseries, all within strolling distance
- Excellent access for M2 commuters, facilitating smooth car journeys into London and beyond
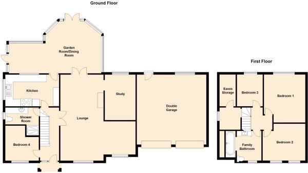
Rooms
Entrance HallDouble glazed door to front. Understairs cupboard. Laminate flooring.
Lounge 7.34m x 6.22mTwo double glazed windows to front. Laminate flooring. Electric fireplace. Two radiators.
Study 3.76m x 2.24mDouble glazed window to front. Laminate flooring. Radiator.
Conservatory 7.04m x 4.6mDouble glazed surround with door to rear. Tiled flooring. Radiator.
Kitchen 4.67m x 3.18mDouble glazed window to side and rear. Range of wall and base units with stone worktop. Tiled flooring.
Shower Room 2.74m x 1.24mDouble glazed window to side. Low level WC. Vanity wash hand basin. Shower. Heated towel rail. Tiled flooring.
LandingDouble glazed window to side. Storage cupboards. Carpet.
Bedroom One 4.42m x 3.7mDouble glazed window to rear. Laminate flooring. Radiator.
Bedroom Two 3.58m x 2.64mDouble glazed window to rear. Laminate flooring. Radiator.
Bedroom Three 3.2m x 2.8mDouble glazed window to front. Laminate flooring. Radiator.
Bedroom Four 2.18m x 2.13mDouble glazed window to front. Laminate flooring. Radiator.
Bathroom 2.64m x 2.2mDouble glazed window to front. Low level WC. Vanity wash hand basin. Bath. Heated towel rail. Radiator. Laminate flooring.
Rear GardenBlock paved area. Decking. Laid to lawn. Hob tub to stay. Timber Summer House/Shed.
Double GarageAccess to rear garden. Up and over door. Electric and lighting.
