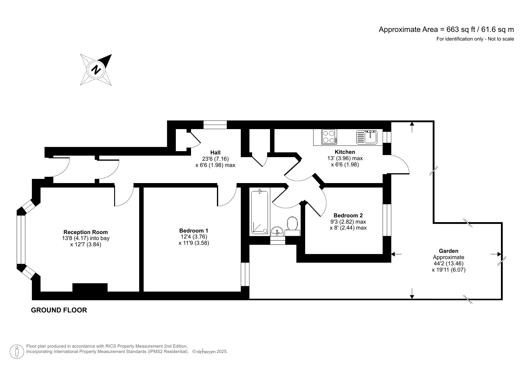
Property Description
*** Guide Price £450,000-£475,000 ***
Well presented 1930's purpose built ground floor maisonette within a short walk of Sydenham station and high street.
Benefitting from two good sized bedrooms, modern kitchen and bathroom, private rear garden, 13' lounge and long lease.
A short walk from Sydenham stations for swift links into London, as well as a wealth of local coffee shops, restaurants and shopping facilities. Green spaces such as Mayow Park and Crystal Palace Park are close by, offering weekend markets, community events and acres of open space.
- Ground floor
- Purpose built maisonette
- Private rear garden
- Modern kitchen and bathroom (with underfloor heating)
- Total floor area 59sqm
- Long lease
- Ideally located for Sydenham high street and station
- Within walking distance of Wells Park, Crystal Palace Park and the award winning Mayow Park
Rooms
Entrance HallPart opaque glazed wooden entrance door, double glazed window to side, radiator, understairs storage cupboard, storage cupboard, stripped and varnished floorboards, coved ceiling.
LoungeDouble glazed bay window to front, radiator, fitted shelving and storage in alcoves, stripped and varnished floorboards, coved ceiling.
KitchenDouble glazed door to garden, double glazed window to rear and side, range of fitted base units with wooden work surface over, one bowl stainless steel sink unit with mixer tap, plumbing for washing machine, space for fridge/freezer, oven, gas hob and extractor fan to remain, vinyl flooring, spotlights.
Bedroom OneDouble glazed window to rear, radiator, stripped and painted floorboards, coved ceiling.
Bedroom TwoDouble glazed window to rear, radiator, stripped and painted floorboards, coved ceiling.
BathroomOpaque double glazed window to side, heated towel rail, three piece bathroom suite comprising of: tiled panelled bath with mixer tap and shower attachment, wall mounted wash hand basin with mixer tap and low level wc, tiled flooring with underfloor heating, part tiled walls, extractor fan, spotlights.
Rear GardenPaved area, laid to lawn, path to further paved area, raised flower bed, side access.
Front GardenLaid to lawn with mature shrub border.
