Property Description
*** Guide Price £400,000-£425,000 ***
Well-presented ground floor period maisonette located in a quiet cul de sac.
Benefitting from two double bedrooms, private rear garden, ample storage, modern 18' lounge/kitchen area and modern bathroom.
Well located for Sydenham/Forest Hill stations and Sydenham/Forest Hill high streets. Within walking distance of Wells Park and Crystal Palace Park.
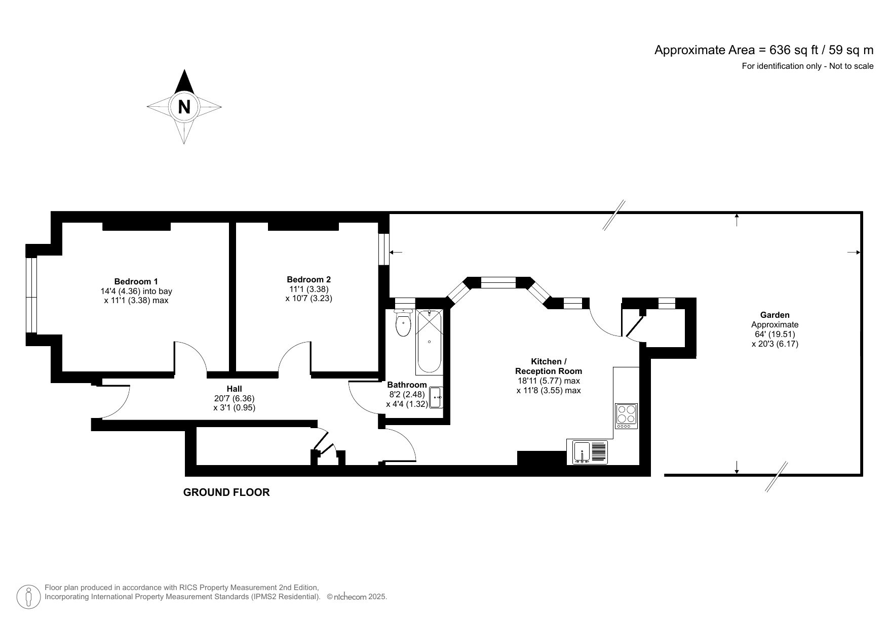
- Attractive period property
- Ground floor
- Private rear garden
- 18' Lounge/kitchen
- Ample storage
- Total floor area 59sqm
- Cul de sac location
- Within walking distance of Sydenham Station (London Overground and trains to London Bridge in 20 mins) and Sydenham Hill Station (London Victoria in 16 mins, London Blackfriars in 18 mins)
- Quiet cul-de-sac location
- 5 min walk to Kirkdale High Street amenities
- Short walk into Forest Hill and Sydenham
- Within walking distance of Wells Park, Sydenham Hill Woods, Crystal Palace Park and Horniman Museum and Gardens
Rooms
Entrance HallWooden entrance door with window above, radiator, understairs storage cupboard, storage cupboard, wooden flooring.
Lounge/KitchenLounge: Bay sash windows to side, radiator, wooden flooring, coved ceiling. kitchen: Part glazed wooden door to side, window to side, range of fitted wall and base units with work surface over, tiled splash back, oven, gas hob and extractor fan to remain, one bowl stainless steel sink unit with mixer tap, integrated fridge/freezer and dishwasher, storage cupboard housing wall mounted boiler and plumbing for washing machine, wooden flooring, coved ceiling.
Bedroom OneSash bay window to front with shutter blinds, radiator, full height fitted wardrobes in alcoves, carpet.
Bedroom TwoSash window to rear, radiator, fitted shelving in alcoves, carpet.
BathroomThree piece bathroom suite comprising of|: panelled bath with mixer taps and shower attachment, pedestal wash hand basin with mixer taps and low level wc, heated towel rail, tiled flooring, tiled walls, extractor fan.
Rear GardenPatio, gravelled area with raised flower bed, outside water tap.
