Property Description
Located on St James Lane in Greenhithe, this rarely available 3-bedroom link-detached bungalow offers a fantastic opportunity for buyers seeking single-level living with future potential. The home boasts a spacious living west-facing garden, and a modern fitted kitchen. With the added benefit of a garage and generous driveway providing parking for multiple vehicles, this property also presents scope for a loft conversion, subject to planning. Ideally located, it’s just moments from local amenities, Bluewater Shopping Centre, and excellent transport links including Greenhithe Station and easy access to the A2/M25. A perfect blend of comfort, convenience, and potential.
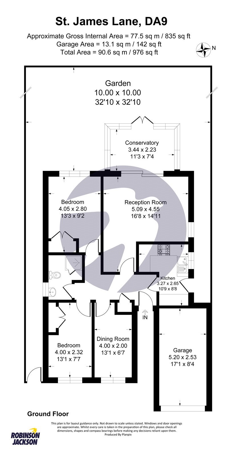
- Link Detached Bungalow
- Conservatory
- 16' Living Room
- Modern Fitted Kitchen
- Parking for Multiple Cars
- West Facing Garden
- Close Proximity to Bluewater shopping centre
- Close to Greenhithe & Stone Crossing Stations
Rooms
Entrance Hall:Radiator. Storage cupboard. Carpet. Loft access.
Lounge: 5.08m x 4.55mDouble glazed window to side. Double glazed sliding door to rear. Two radiators. Carpet. Open to:
Conservatory: 3.43m x 2.24mDouble glazed patio doors to rear. Double glazed windows to sides. Vinyl flooring.
Kitchen: 3.28m x 2.64mDouble glazed window to side. Frosted double glazed door to side. Range of matching wall and base units with complementary work surface over. Stainless steel sink with drainer. Integrated electric oven, hob and extractor. Fridge freezer. Washing machine. Part tiled walls. Vinyl flooring.
Dining Room/Bedroom Three: 4m x 2mDouble glazed window to front. Radiator. Carpet.
Bedroom One: 4.04m x 2.8mDouble glazed window to rear. Radiator. Carpet.
Bedroom Two: 4m x 2.3mDouble glazed window to front. Radiator. Carpet.
Shower Room: 2.34m x 1.85mFrosted double glazed window to side. Low level WC. Vanity wash hand basin. Shower cubicle. Heated towel rail. Tiled walls. Laminate flooring.
