Property Description
Exciting Development Opportunity – £550,000–£600,000 Guide Price
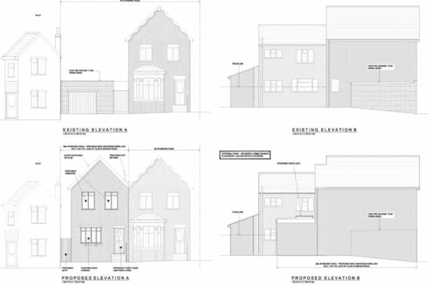
Robinson Jackson are delighted to present this three-bedroom detached home, set on a substantial plot with approved planning permission for a two-bedroom semi-detached houses. Whether you're an investor, developer, or a buyer seeking a home with long-term potential, this is an exceptional opportunity not to be missed.
The existing detached property offers spacious living accommodation and could be renovated or extended further, subject to additional permissions. The approved planning provides immediate development potential, and interested buyers are encouraged to explore further possibilities with the local council.
Call us today for re-sale values
- 3 Bedroom Detached House
- Planning Permission Approved for 2-Bed Semi.
- Generous Plot with Scope for Further Development (STPP)
- Excellent Investment Potential
- Ideal for Developers or Owner-Occupiers with Vision
- Contact Robinson Jackson for Re-sale Valuations and Advice
- This is a rare chance to secure a versatile property with both current appeal and future growth prospects.
- To arrange a viewing or for more details, contact Robinson Jackson today.
