Property Description
Beautiful first floor apartment conveniently located within walking distance of Sydenham station and high street. Share of freehold, ample storage, allocated parking space, two good sized bedrooms and a generous lounge. Set within the prestigious Lawrie Park triangle and in close proximity to Mayow Park and Crystal Palace Park. No onward chain
- Bright and airy throughout
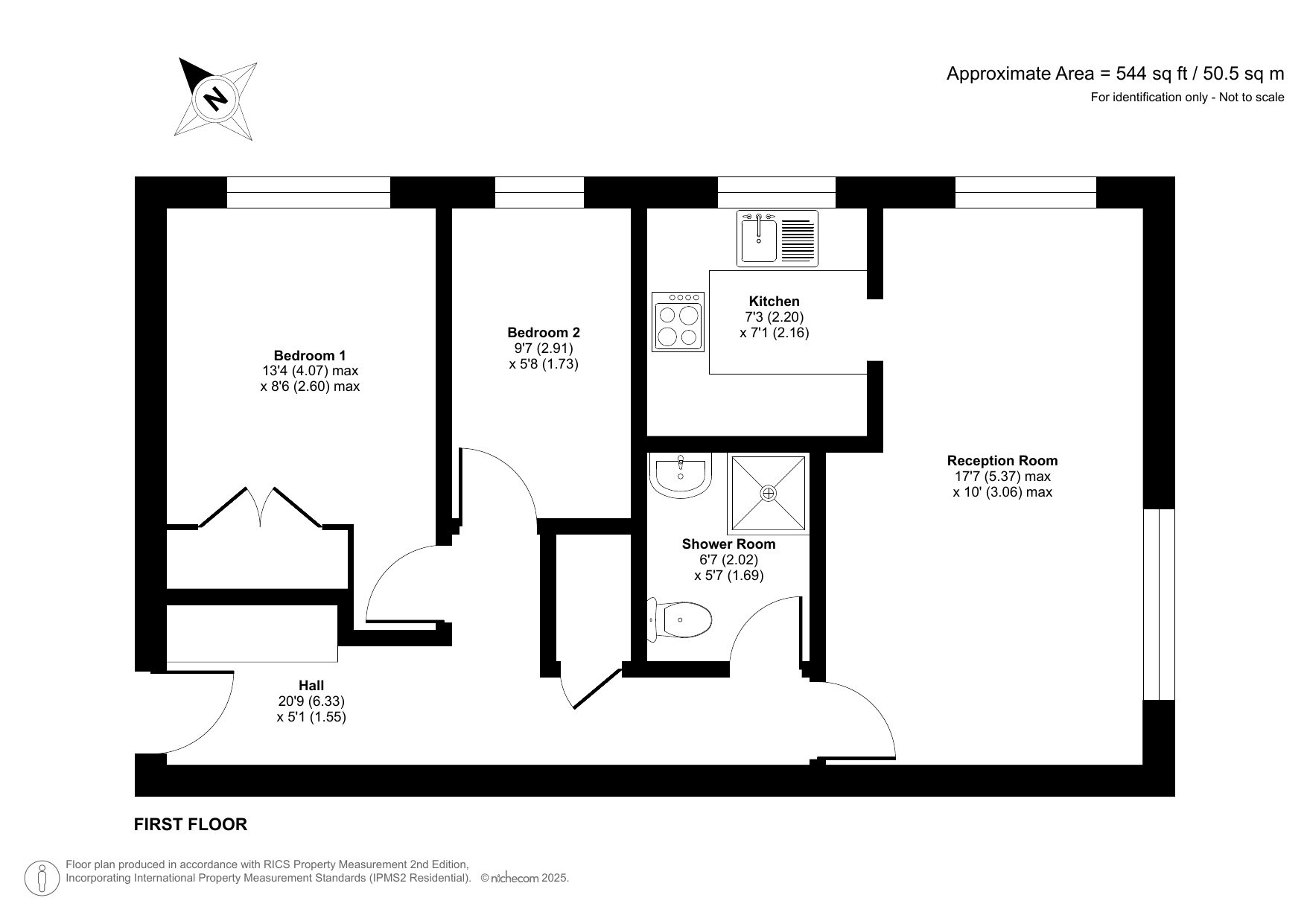
- Total floor area 51sqm
- Ready to move-in
- Generous reception room, accommodating separate living and dining areas
- No chain
- Allocated parking space
- Share of freehold
- Video entry system
- Communal garden
- Located in the prestigious Lawrie Park triangle
- Excellent transport links with Sydenham station a 5 minute walk away, and Penge East station also nearby
Rooms
Communal Entrance HallGlazed communal entrance door, carpet, stairs to first floor, coved and textured ceiling.
Entrance HallEntrance door, two storage cupboards, video entry system, storage heater, textured ceiling.
LoungeDouble glazed window to side and rear, storage heater, carpet, arched entrance to kitchen, textured ceiling.
KitchenDouble glazed window to side, range of fitted white wall and base units with work surface over, one bowl stainless steel sink unit with mixer tap, space for electric cooker, plumbing for washing machine, plumbing for dishwasher, space for fridge/freezer, tiled splash back, extractor fan, vinyl flooring, textured ceiling.
Bedroom OneDouble glazed window to side, built in wardrobe, carpet, textured ceiling.
Bedroom TwoDouble glazed window to side, carpet, textured ceiling.
BathroomThree piece suite comprising of: enclosed corner shower cubicle, mixer shower over, tiled walls and sliding door, wall mounted wash hand basin with mixer tap and vanity unit under, low level wc, heated towel rail, tiled flooring, tiled walls, extractor fan.
Allocated Parking Communal Garden
