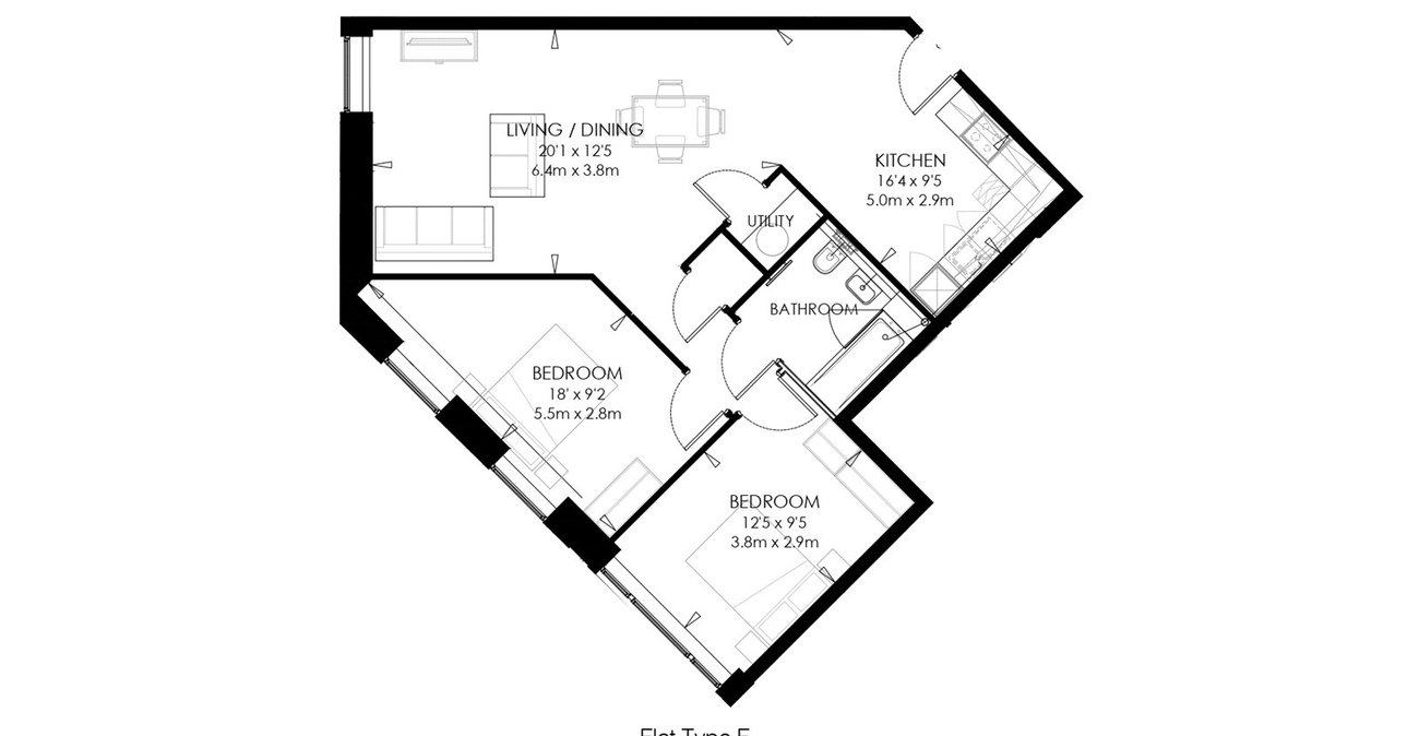
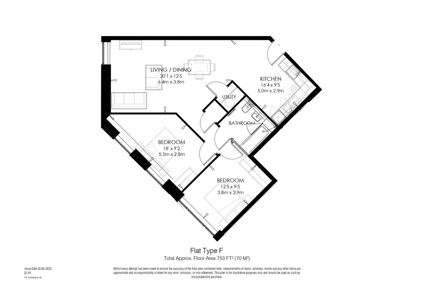
Property Description
Robinson Michael & Jackson are pleased to present this modern two bedroom first floor apartment in Chatham. Available April 2026.
* Two double bedrooms
* Open plan living area
* Family bathroom with shower over bath
* Modern kitchen with integrated fridge freezer and dishwasher included
* Storage cupboard with washer/dryer
* Lift access
* Finished to a high standard through
* Residents parking available
* Located in the popular area of Chatham dockside
* Close to local town and shops
* Pets welcome!
Term: 12 months minimum
Deposit: £1615.00
Council tax: Band C
Gross household income must be 30X the monthly rent per year before tax to pass referencing. Any guarantor must earn 36 X the rent per year before tax to pass referencing
