Property Description
Robinson Michael & Jackson Lettings are pleased to present this modern three bedroom in Rochester. Available now!
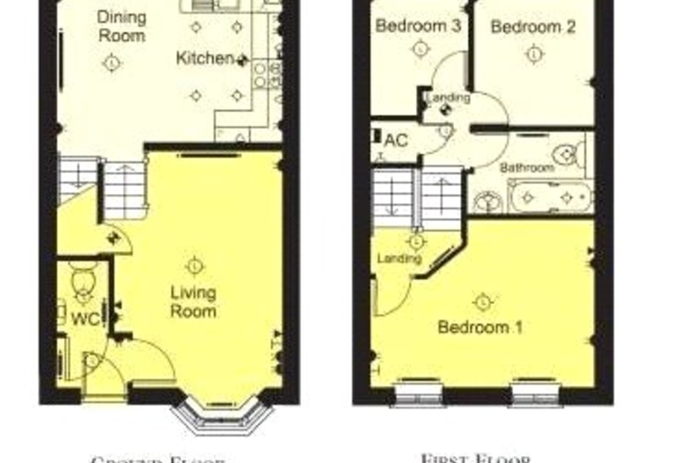
* One double bedroom
* Two single bedrooms
* Seperate lounge
* Open plan kitchen/dining area
* Modern kitchen with fridge freezer, washing machine and dishwasher
* Newly repainted through
* New flooring throughout
* Upstairs family bathroom with shower over bath
* Downstairs W/C
* Short walk to town centre
* Nearby secondary and primary schools
* Available immediately
* Unfurnished
Term: 12 Months
Deposit: £1730.00
Council Tax: Band D
Gross household income must be 30X the monthly rent per year before tax to pass referencing. Any guarantor must earn 36X the rent per year before tax to pass referencing. Please note if guarantor is required and is self-employed the referencing will be based on NET income and must be able to provide latest SA302.
