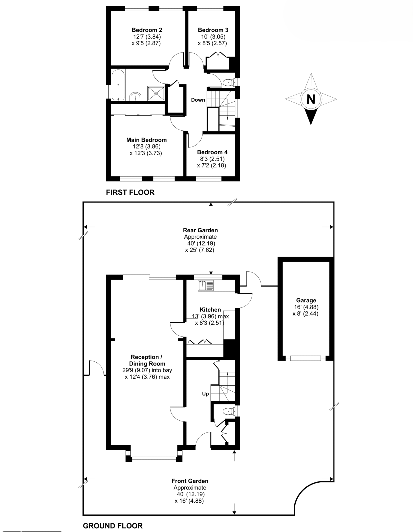
Property Description
An elegant four bedroom detached family home offering a modern specification throughout.
*Available 16th March 2026
*Four Bedroom House
*Detached Property
*Quiet Community Feel
*Modern Kitchen
*Four Piece Bathroom
*Downstairs WC
*Spacious Bedrooms
*Sundridge Park Train Station 3 Minute Drive
*Built In Wardrobes
*Beautiful Garden
*Garage
*Driveway
*EPC - D
Additional Information:
Affordability Criteria - £99,000
Security Deposit - £3,807
Council Tax Band - F
- AVAILABLE OCTOBER
- DRIVEWAY, GARAGE AND CARPORT
- 2 TOILETS
- LARGE LIVING AREA
- WHITE GOOD'S
- 3 MINUTE DRIVE TO SUNDRIDGE PARK STATION
