Property Description
Robinson Jackson are pleased to present this two bedroom modern home, situated just off of West Hill in Dartford, within walking distance of local amenities and transport links.
*Available 31st March
*Two Double Bedrooms
*Unfurnished
*Modern Throughout
*Short Walk to Local Amenities
*Dartford Station Nearby
*EPC: C
*Council Tax: D
Please call Robinson Jackson today to arrange a viewing
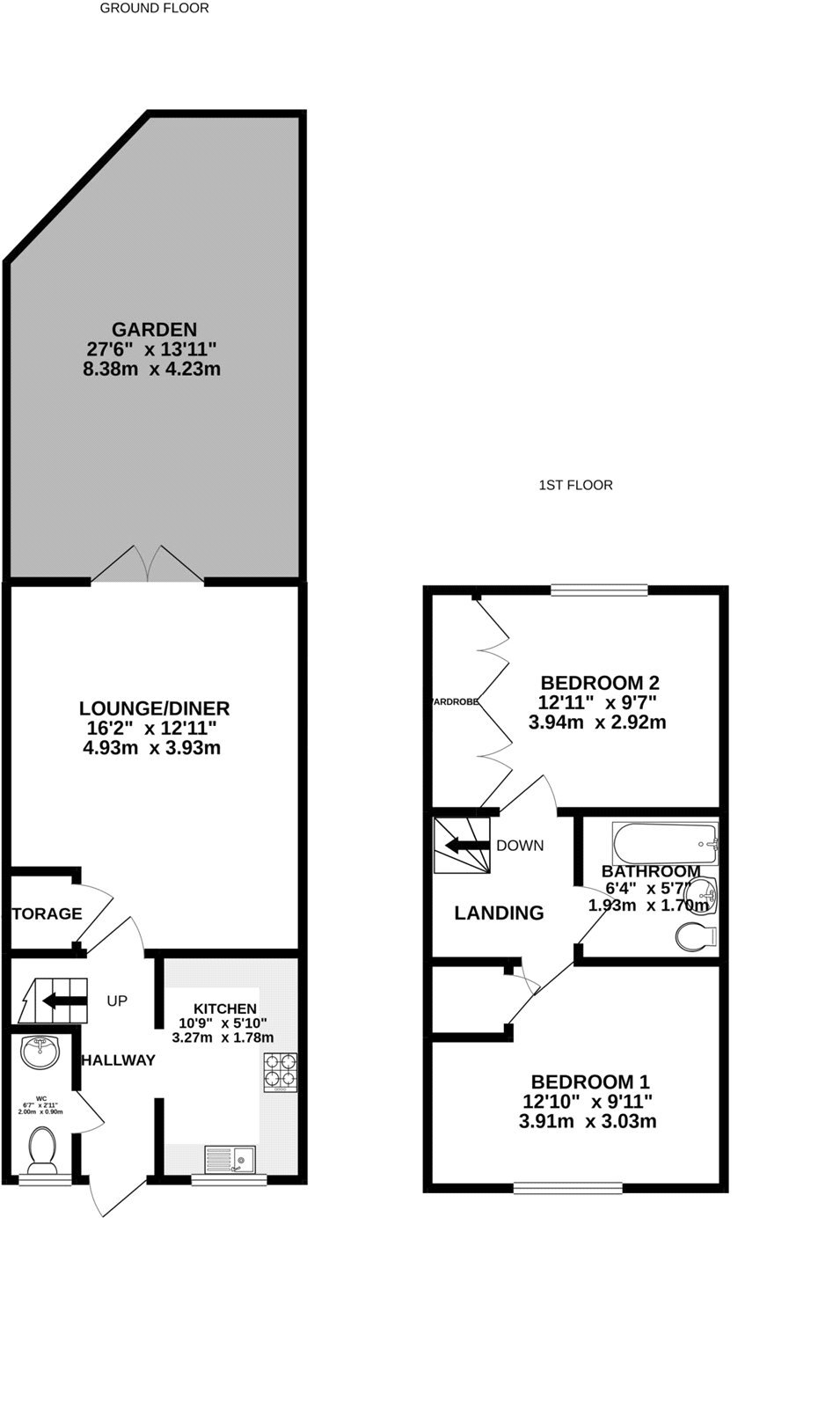
- No Chain
- Ground floor cloakroom
- Open plan lounge/diner
- South Facing, mainly decked rear garden
- Central heating & double glazing
- Allocated parking
- Close Proximity to Town Centre & Station
- Ideal First Time Buy or Investment Purchase
Rooms
Entrance Hall:Entrance door. Radiator. Wood effect laminate flooring.
Ground Floor Cloakroom:Double glazed window to front. Low level WC. Wash hand basin with inset vanity unit. Radiator. Wood effect laminate flooring.
Kitchen: 3.05m x 1.78mDouble glazed window to front. Range of wall and base units with complementary work surfaces over and incorporating stainless steel sink unit. Integrated fridge/freezer. Gas hob with extractor fan over. Electric oven. Integrated washer/dryer. Wood effect laminate flooring.
Lounge: 4.93m x 4.7mDouble glazed patio doors to garden. Radiator. Storage cupboard. Wood effect laminate flooring.
Landing:Radiator. Carpet. Doors to:
Bedroom 1: 3.23m x 2.92mDouble glazed window to rear. Radiator. Built-in wardrobes. Wood effect laminate flooring.
Bedroom 2: 3.91m x 2.82mDouble glazed window to front. Built-in storage cupboard housing hot water tank. Radiator. Carpet.
Bathroom:Part tiled walls. Panelled bath with shower screen and shower attachment. Pedestal wash hand basin. Low level WC. Heated towel rail. Vinyl tiled effect flooring.
