Property Description
Robinson Jackson are thrilled to introduce to the market this enchanting ground floor period conversion which possesses undeniable kerb appeal and combines character, space and modern comfort all in one. Boasting two double bedrooms, two bathrooms (one en-suite), a large private garden, share of freehold and a cellar, this is a rare offering in a prime South East London location.
Inside, the property is rich in period charm, featuring elegant high ceilings and striking herringbone parquet flooring that flows through the living space, creating a warm and sophisticated atmosphere. The spacious reception room is perfect for both relaxing and entertaining, while the well-appointed kitchen and two contemporary bathrooms offer stylish practicality. Both bedrooms are well-proportioned doubles, ideal for professionals, couples, young families or those needing flexible home-working space.
The impressive private garden is a true highlight — a substantial outdoor retreat perfect for summer gatherings, alfresco dining or simply unwinding in your own green sanctuary. The cellar provides valuable additional storage, further enhancing the home’s practicality.
Ideally positioned within easy reach of Hither Green, Lewisham and Blackheath, the property benefits from superb transport connections, including the DLR from Lewisham offering swift access to Canary Wharf and Central London. Lewisham Shopping Centre, a variety of cafés, restaurants, gyms and supermarkets are all close by, alongside highly regarded local schools.
For green open spaces, the beautiful Manor House Gardens and the open heathland of Blackheath are close by, the latter famed for its independent boutiques, upmarket restaurants and vibrant farmers’ market.
Perfect for first-time buyers, professionals, couples, young families and investors alike, this impressive home truly ticks every box.
Early viewing is highly recommended and strictly by appointment only via sole agents Robinson Jackson.
LOCATION
While Lewisham offers excellent transport links - including mainline trains and the DLR for swift access to central London - it’s also a vibrant destination in its own right. The town boasts a bustling indoor shopping centre, a lively daily street market, and an impressive variety of restaurants offering global cuisine. You'll also find an abundance of green spaces, perfect for weekend strolls or family outings.
Families are well catered for, with a wide choice of well-regarded state primary and secondary schools, along with respected independent options. Just next door, the charming village of Blackheath adds another layer of appeal with its boutique shops, stylish bars, and fine dining establishments.
SHARE OF FREEHOLD INFORMATION
Length of Lease: 999 years from 25 August 2011*
Time remaining on lease: 984 years*
Service Charge: Ad hoc*
(*to be verified by Vendors Solicitor)
ADDITIONAL INFORMATION
• Postcode: SE13 5QJ
• Local Authority: London Borough of Lewisham
• Council Tax: Band B (£1,660.66 pa)
• EPC Rating: D
• No parking arrangements, on street - Resident permit holders only (F) Mon-Fri 9am - 7pm
UTILITIES
• Mains electricity
• Mains water
• Mains gas
• Drainage to public sewer
NEAREST TRAIN STATIONS
• Hither Green Train Station
• Lewisham DLR/Train Station
• Blackheath Train Station
• Lee Train Station
FLOOD RISK
For information please visit: check-long-term-flood-risk.service.gov.uk/postcode
BROADBAND & MOBILE COVERAGE
For broadband and mobile phone coverage at the property please visit:
• Broadband: checker.ofcom.org.uk/en-gb/broadband-coverage
• Mobile: checker.ofcom.org.uk/en-gb/mobile-coverage
- Two bedroom Victorian conversion garden flat
- Spacious bay fronted reception room
- Fully fitted kitchen
- Two bathrooms
- Direct access to a private rear garden
- Cellar
- Conveniently located close to excellent transport links
- Close to local amenities, schools and Manor Park
- Ideal for first-time buyers, downsizers or investors
- Total floor area: 47m²= 505.9ft² (guidance only)
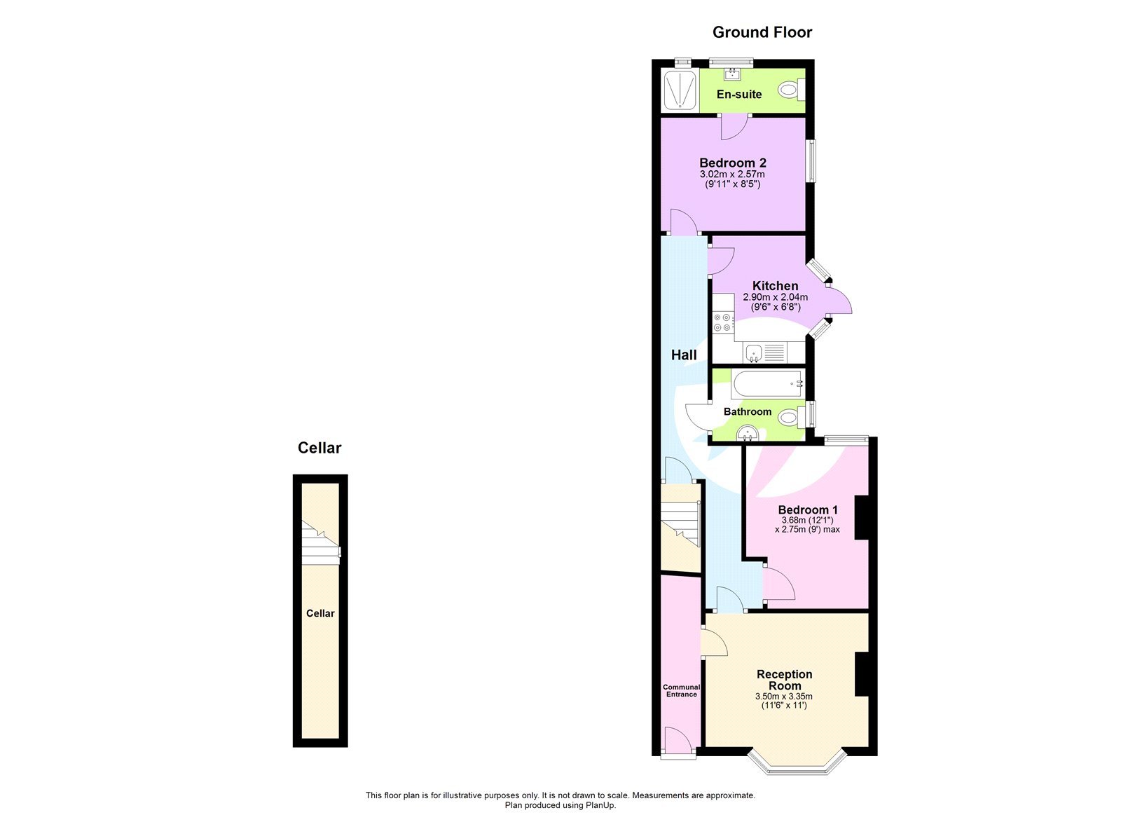
Rooms
INTERIOR Reception Room: 3.50m x 3.35mEntrance door, double glazed bay window to front, wood floor, covings and ceiling rose, radiator.
Kitchen: 2.90m x 2.04mDouble glazed windows and door to side, range of wall and base units with work tops above, integrated electric oven and gas hob with extractor hood over, sink with mixer tap, plumbed for washing machine, tiled splash back and tiled floor, space for fridge freezer, radiator.
Bedroom 1: 3.68m x 2.75mDouble glazed window to the rear, wood floor, covings and ceiling rose, built in wardrobe, radiator.
Bathroom: 2.10m x 1.65mDouble glazed window to side, panel enclosed bath with rain shower over and shower screen, wash hand basin, low level WC, partly tiled walls and tiled floor, heated towel rail, covings.
Bedroom 2: 3.02m x 2.57mDouble glazed window to side, wood floor, radiator, covings, access to En-Suite.
En-Suite:Double glazed window to the rear, walk in shower, wash hand basin with small storage underneath, low level w.c., partly tiled walls and tiled floor.
Cellar: 6.50m x 1.00mEXTERIOR Garden:Laid to lawn, paved patio area, access from the back.
