Property Description
*** 50% Shared Ownership ***
Spacious and well-presented first floor flat set within an attractive period style block.
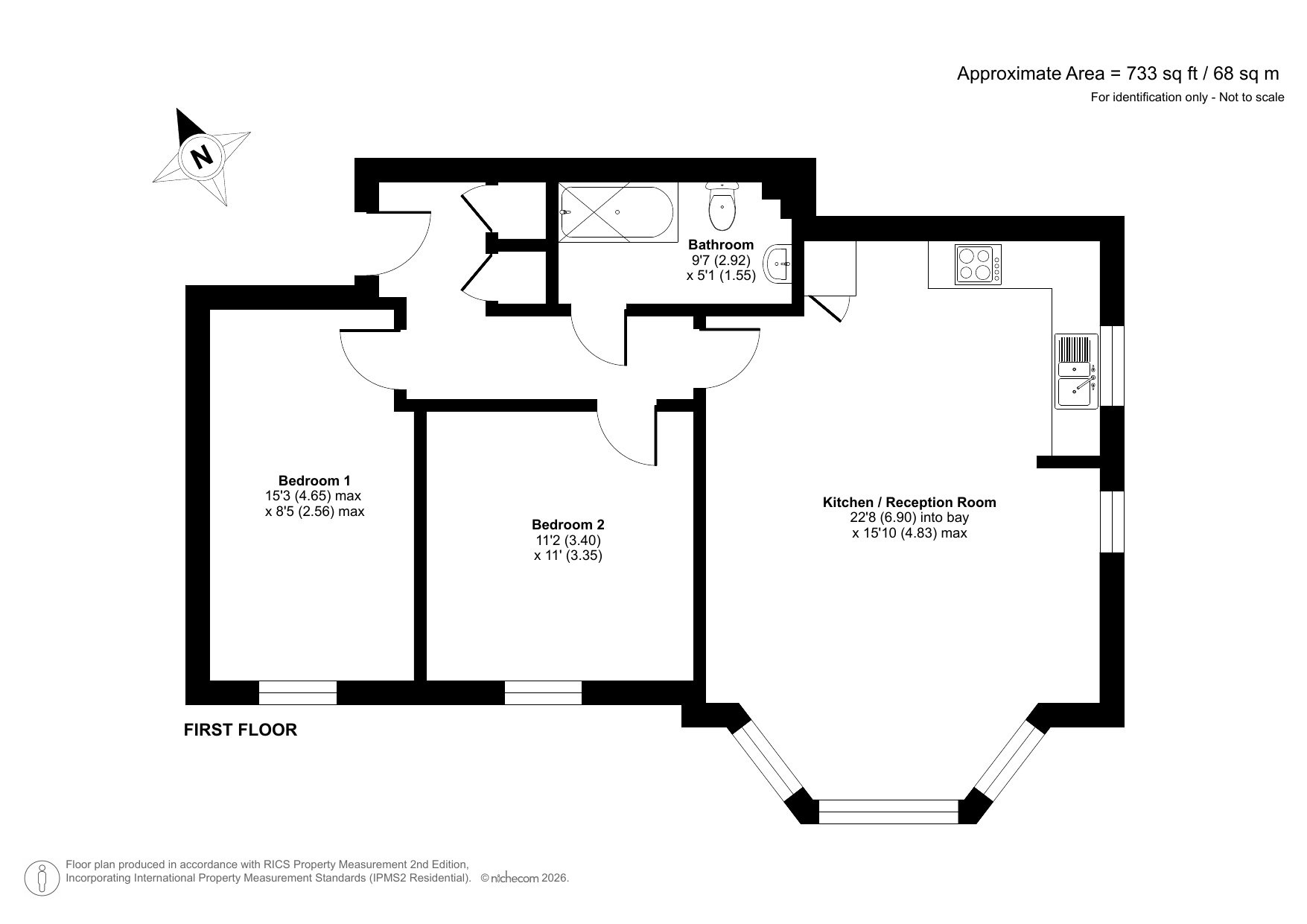
Benefitting from two double bedrooms, 22' open plan living area, allocated parking space, modern kitchen and bathroom, ample storage and being sold with no onward chain.
The popular Crystal Palace triangle is a short distance away with a wealth of boutiques, bars, schools, and independent shops to peruse. Further transport links at Gipsy Hill and West Norwood station, both within easy reach as well as many superb bus routes on Beulah Hill including the express bus service SL6.
- ** Shared Ownership**
- 22' Open plan living area
- Two double bedrooms
- Modern bathroom and kitchen
- Total floor area 68sqm
- Residents parking
- Ample storage
- Long lease
- Well located for Upper Norwood recreation ground, Crystal Palace triangle and public transport
Rooms
Communal EntrancePart double glazed communal entrance door, carpet, stairs to first floor.
Entrance HallWooden entrance door, radiator, entry phone, two storage cupboards, carpet.
Lounge/KitchenLounge: Double glazed bay window to front, double glazed window to side, two radiators, carpet. Kitchen: Double glazed window to side, range of fitted white wall and base units with work surface over, one and a half bowl stainless steel sink unit with mixer tap, oven, gas hob and extractor fan to remain, plumbing for washing machine, space for fridge/freezer, cupboard housing wall mounted boiler, tiled splash back, laminate flooring, spotlights.
Bedroom OneDouble glazed window to front, radiator, carpet.
Bedroom TwoDouble glazed window to front, radiator, carpet.
BathroomRadiator, three piece bathroom suite comprising of: panelled bath with separate taps and mixer shower over, pedestal wash hand basin with separate taps and low level wc, part tiled walls, vinyl flooring, extractor fan, spotlights.
