Property Description
Located in the sought-after Heron Court within Castle Hill, Ebbsfleet, this spacious 79 sq. metre first-floor apartment offers modern living in a vibrant and well-connected community. Enjoying a desirable corner position, the property boasts a generous open-plan layout and a large private balcony perfect for relaxing or entertaining. Both double bedrooms benefit from fitted wardrobes, with the added convenience of an en-suite to the master bedroom. Additional features include lift access within the block, an allocated parking space and many upgrades within the property. Ideally positioned, residents are just moments from the local shops, cafe, and schools, with nearby parks and walking trails offering plenty of green space. Excellent transport links include Ebbsfleet International Station, providing high-speed rail services to London St Pancras in under 20 minutes, making this an ideal home for commuters.
- Spacious Apartment 79 sq.m/850 sq.ft
- Built-in Wardrobes
- First Floor
- Lift Within Block
- Corner Position
- Large Balcony
- En-Suite & Family Bathroom
- Allocated Parking
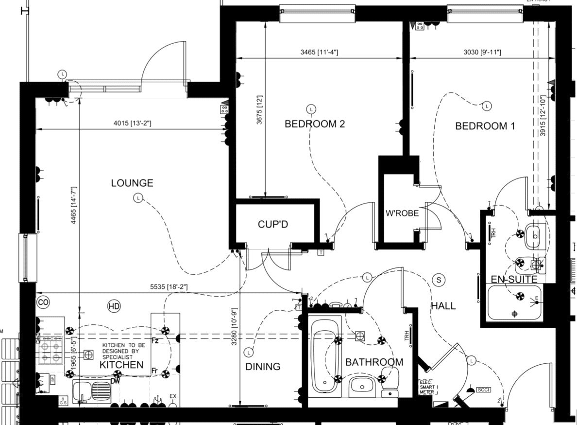
Rooms
Entrance Hall:Telephone entry system. Storage cupboard. Radiator. Karndean flooring.
Open Plan Living: 6.55m x 5.49mDouble glazed window to side. Double glazed window and doors leading to balcony. Storage cupboard. Two radiators. Karndean flooring. Kitchen Area: Range of matching wall and base units with complimentary work surface over. Integrated electric oven, induction hob and extractor. Integrated fridge freezer. Integrated washer/dryer. Integrated dishwasher. Cupboard housing boiler. Karndean flooring.
Bedroom One: 4.57m x 3.45mFloor to ceiling double glazed window. Radiator. Built in wardrobes. Carpet.
Ensuite: 2.18m x 1.4mLow level WC. Wash hand basin. Shower cubicle. Heated towel rail. Fully tiled walls. Vinyl flooring. Extractor fan.
Bedroom Two: 4.57m x 3.7m x 2.95mFloor to ceiling double glazed window. Radiator. Built in wardrobes. Carpet.
Bathroom: 2.16m x 1.65mLow level WC. Wash hand basin. Panelled bath with shower over. Heated towel rail. Fully tiled walls. Vinyl flooring. Extractor fan.
