Property Description
*** SHARED OWNERSHIP 25%***
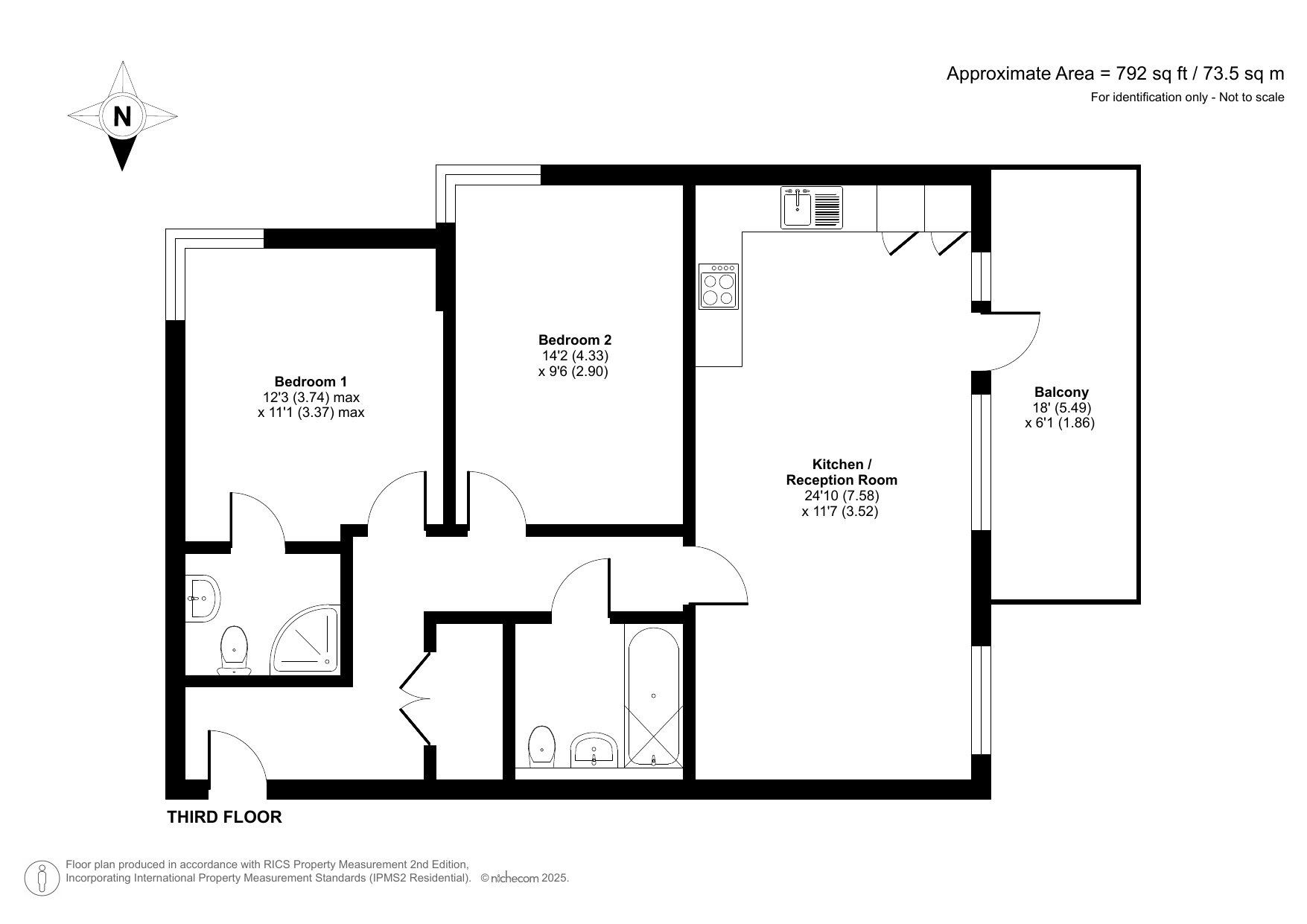
A bright and spacious two double bedroom apartment set on the third floor of a modern, purpose-built development. This stylish home features a contemporary open-plan lounge and kitchen with integrated appliances, full-length windows flooding the space with natural light, and a decked private balcony – perfect for relaxing or entertaining.
Additional benefits include double glazing, ample storage, a secure entry phone system, and access to a secluded communal courtyard.
Ideally located just a few minutes’ walk from Forest Hill Station, offering excellent transport links, and close to an array of local shops, cafés, and amenities on Forest Hill High Street. The much-loved Horniman Museum and Gardens are also nearby, adding to the area’s charm and community appeal.
- Two Double Bedrooms
- Modern Purpose Built Flat
- Chain Free
- Open Plan
- Leasehold
- Long Lease
- Third Floor
- Double Glazing
- Laminate Flooring Where Stated
- Ample Storage
- Entry Phone
- Integrated Appliances
- Contemporary Designed
- Excellently located for Forest Hill Station
Rooms
Entrance Halllaminate flooring, double storage cupboard, radiator
LoungeFull height double glazed window to rear, radiator, laminate flooring, open to:
KitchenFull height double glazed window to rear, double glazed door to balcony, range of fitted high gloss wall and base units with granite work surface over, one bowl stainless steel sink unit with mixer tap, oven, hob and extractor fan to remain, integrated dishwasher, washing machine and fridge/freezer, laminate flooring, spotlights.
Master BedroomFull height double glazed window to side, radiator, carpet, door to ensuite.
Ensuite BathroomThree piece suite comprising of: enclosed shower cubicle with mixer shower over, tiled walls and sliding door, pedestal wash hand basin with mixer tap and low level wc, heated towel rail, tiled flooring, part tiled walls, extractor fan, spotlights.
Bedroom TwoFull height double glazed window to side, radiator, carpet.
BathroomThree piece bathroom suite comprising of: tiled panelled bath with mixer tap and shower attachment, inset wash hand basin with mixer tap and enclosed low level wc, heated towel rail, tiled flooring, part tiled walls, extractor fan, spotlights.
BalconyDecking, overlooking communal grounds
