Property Description
*** Shared Ownership***
Spacious first floor apartment set within a modern block built in 2018.
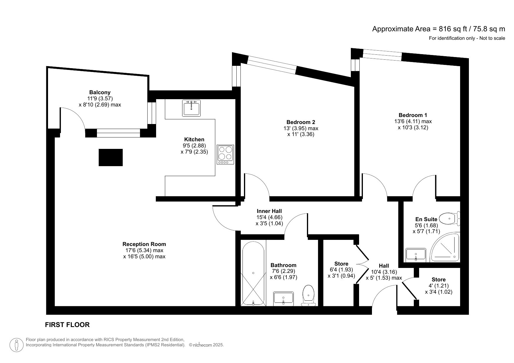
Benefitting from two double bedrooms, balcony, two bathrooms, 17' lounge, ample storage and long lease.
Within a short walk of Forest Hill station and high street.
Conveniently located for local independent shops, eateries and bars, local high street shops and amenities and Horniman Museum & Gardens
- Two Double Bedrooms
- Modern Purpose Built Flat
- Open Plan
- Leasehold
- Long Lease
- Third Floor
- Double Glazing
- Laminate Flooring Where Stated
- Ample Storage
- Entry Phone
- Integrated Appliances
- Contemporary Designed
- Excellently located for Forest Hill Station
Rooms
Communal EntranceDouble glazed communal entrance door, vinyl flooring, stairs and lift to first floor, bike storage.
Entrance HallWooden entrance door, video entry phone, two storage cupboards, laminate flooring.
LoungeFull height double glazed window to front, double glazed door to balcony, radiator, laminate flooring, open to kitchen, coved ceiling.
KitchenFull height double glazed window to front, range of fitted high gloss grey wall and base units with work surface over, one and a half bowl inset sink unit with mixer tap, oven, gas hob and extractor fan to remain, integrated fridge/freezer, washer/dryer and dishwasher, cupboard housing wall mounted boiler, laminate flooring, coved ceiling with spotlights.
Bedroom OneFull height double glazed dual aspect window to side, radiator, carpet, door to en suite.
En Suite Shower RoomThree piece suite comprising of: enclosed corner shower cubicle with tiled walls, sliding door and mixer shower over, pedestal wash hand basin with mixer tap and low level wc, heated towel rail, tiled flooring, part tiled walls, extractor fan, spotlights.
Bedroom TwoFull height double glazed dual aspect window to side, radiator, carpet.
BathroomThree piece bathroom suite comprising of: tiled panelled bath with mixer tap and shower attachment, inset wash hand basin with mixer tap and enclosed low level wc, heated towel rail, tiled flooring, part tiled walls, extractor fan, spotlights.
Balcony Communal AreaMainly paved, seating areas, raised shrub and flower beds.
