Property Description
Bright and airy first floor modern purpose built flat offering spacious living accommodation.
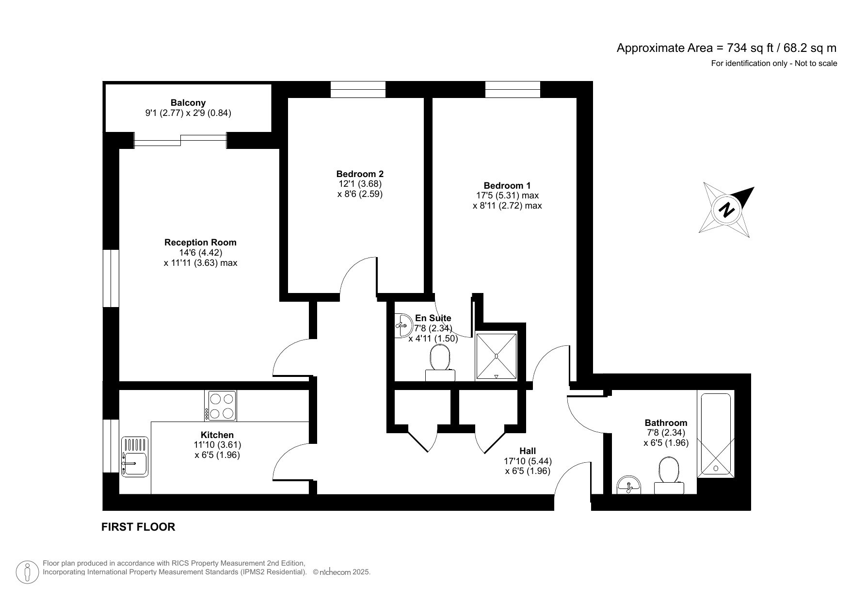
Benefitting from two double bedrooms, balcony overlooking the communal gardens, allocated parking space, two bathrooms and being sold with no onward chain.
Within a short walk of Elmers End station and Tram stop and South Norwood Country Park. Well located for amenities, public transport and short bus ride to Beckenham.
- Modern block
- First floor
- Two double bedrooms
- Two bathrooms
- Balcony
- Total floor area 68sqm
- Allocated parking
- Communal garden
- No chain
- Within a short walk of Elmers End station and Tram stop and South Norwood Country Park. Well located for amenities, public transport and short bus ride to Beckenham.
Rooms
Communal Entrance Entrance HallEntrance door, wall mounted electric heater, two storage cupboards, laminate flooring.
LoungeDouble glazed sliding door to balcony, double glazed window to side, wall mounted electric heater, laminate flooring.
KitchenDouble glazed window to side, range of fitted white wall and base units with wood effect work surface over, one and half bowl ceramic sink unit with mixer taps, oven, hob and extractor fan to remain, space for fridge/freezer, integrated washing machine, laminate flooring, tiled splash back.
Bedroom OneDouble glazed window to rear, wall mounted electric heater, carpet, door to en suite.
En SuiteEnclosed shower cubicle with mixer shower over, tiled walls and door, inset wash hand basin with mixer tap and vanity unit under, low level wc, tiled flooring, extractor fan.
Bedroom TwoDouble glazed window to rear, wall mounted electric heater, carpet.
BathroomThree piece bathroom suite comprising of: panelled bath with mixer tap and mixer shower over, inset wash hand basin with mixer tap and vanity unit under, low level wc, tiled flooring, part tiled walls, extractor fan.
BalconyViews overlooking the communal gardens.
ParkingAllocated parking space.
