Property Description
Guide Price £250,000 to £275,000
Located in the popular Discovery Drive, a stones throw from Swanley station which offers fast services to London Bridge, Charing Cross, Victoria, and Blackfriars is this impressive and spacious penthouse apartment. Offering an incredible 57 square meters of living space, integrated storage space, a private 8.29m South facing balcony with unobstructed views of the surrounding countryside and allocated parking. This fantastic top floor apartment is ideal for anyone looking for a great space, convenient London access and privacy
- Pent House
- 57m2 (614ft2)
- 8.29m Private South Facing Balcony
- Open Plan Lounge/Dining/Kitchen Space
- Allocated Parking
- 0.4 Miles to Station
- Great for London Access
Rooms
Communal EntranceProviding access to stairwell, lift and further entrance. Accessed by key, fob or video entry system.
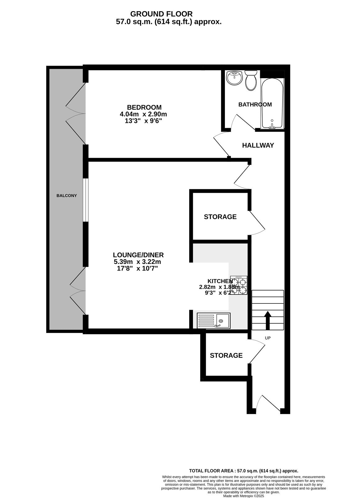
Entrance HallProviding access to lounge/diner, bedroom and bathroom. 2 x large storage cupboards. Radiator. Video entry phone system.
Lounge/Diner 5.39m x 3.22mDouble glazed French doors and window with an amazing view of the local countryside and access to private balcony. Radiator. Open to kitchen.
BalconyFull width and private. Offering a Southern exposure. Accessed from both the lounge/diner and bedroom.
Kitchen 2.82m x 1.88mOpen to lounge/diner. Offering a range of matching wall and base cabinets with inset sink/drainer and gas hob. Integrated oven and extractor. Space for fridge/freezer, washing machine and dishwasher.
Bedroom 4.04m x 2.9mDouble glazed French doors to balcony. Radiator.
BathroomEnclosed panelled bath with glass screen and shower over. Wash basin. Low level wc. Heated towel rail.
