Property Description
GUIDE PRICE £160000-£180000,
INVESTMENT OPPORTUNITY with TENANT in situ offering a 7.7% YIELD. Welcome to Gravesend’s VIBRANT new development - Trinity Point. Offering a second floor apartment situated in a hotspot destination of Gravesend Town Centre.
Trinity Point is a stone's throw away from Gravesend Train Station with excellent transport links to London, offering a High Speed Service with a journey time of 23 minutes to St Pancras, making these apartments a Commuters dream.
Trinity Point's communal facilities brings the epitome of modern city living to Gravesend. With an array of exceptional amenities designed to elevate your lifestyle. With vibrant art deco-themed communal spaces allowing residents to relax and unwind in inviting seating areas, perfect for lounging with friends.
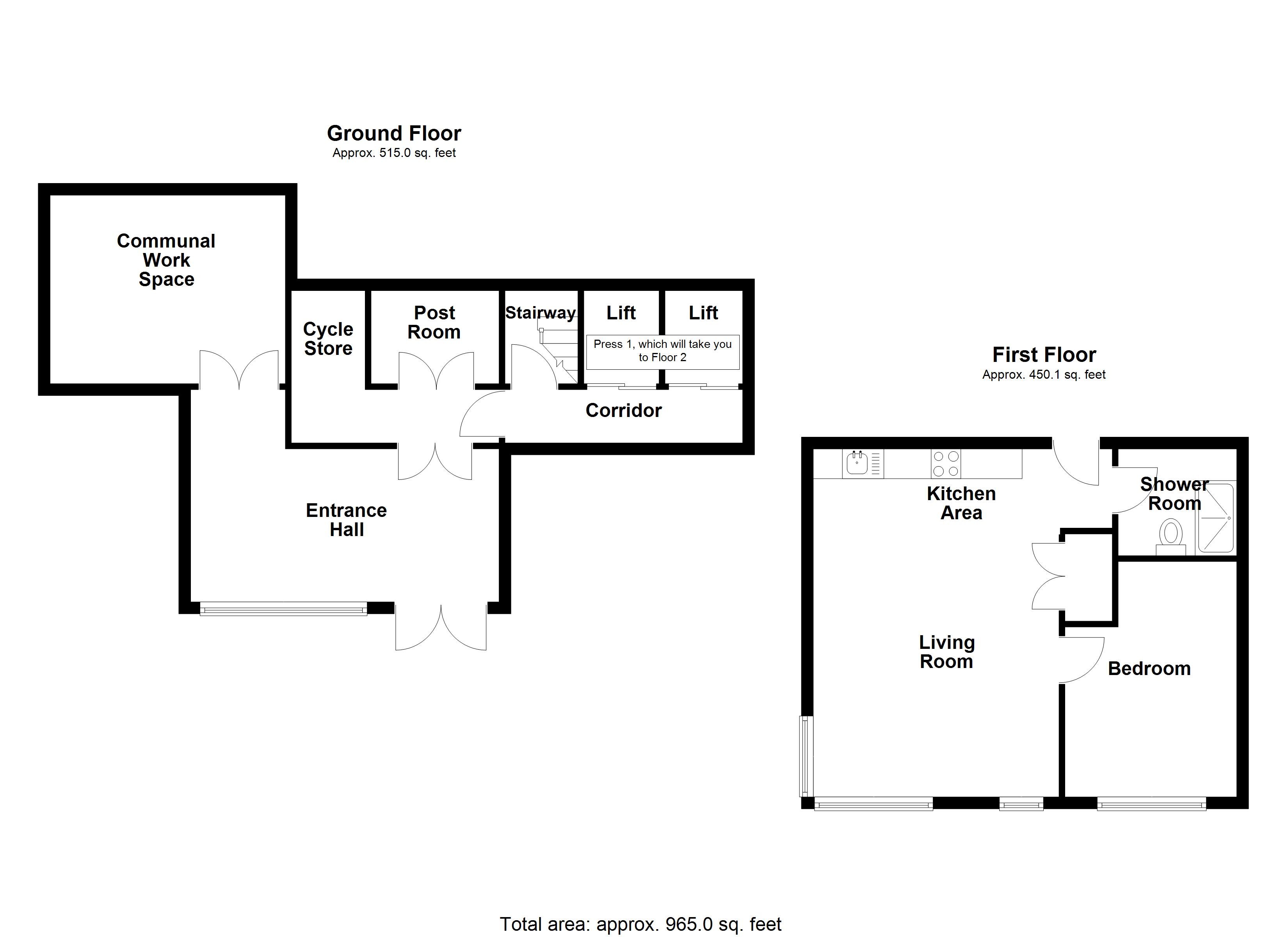
The dedicated work stations at Trinity Point offer high-speed internet access, ideal for remote working or study sessions.
This Apartment has been designed around the end user, from allowing additional storage space where possible, to retaining the large windows to allow an abundance of natural light in. Open plan living areas have been finished with the highest quality with bespoke kitchen units with soft closing cupboard doors, electric fan assisted oven and ceramic hob, integrated fridge and freezer,
The modern shower room offers a shower cubicle with over head spray, vanity wash basin and w.c
Call today to book a viewing appointment,
- Security Entry Phone System
- Communal Lift
- Open Plan Living Area
- Integrated Kitchen Appliances
- Double Bedroom
- Modern Shower Room
- Double Glazing
- Electric Heaters
- Long Lease and Affordable Service Charges
- Close to Town & Station
- Viewing Recommended
- No Forward Chain
- Ideal Investor Purchase
- All Furniture Up For Negotiation
Rooms
Lounge/ Diner/ Kitchen 5.87m x 4.2mEntrance door with security entry phone. Double glazed window to front and side. Laminate floor. Electric radiator. Inset spotlights. Modern fitted wall and base units with worktops over. Built in oven, hob and extractor fan. Integrated fridge and freezer. Inset spotlights. Door to bedroom. 2 x Built in cupboards.
Bedroom 4m x 2.84mDouble glazed window to front. Laminate floor. Electric heater.
Shower Room 2m x 1.8mTiled shower room. Independant shower and overhead spray. Vanity wash hand basin. Low level WC. Tiled floor. Extractor fan. Fitted mirror. Heated towel rail.
