Property Description
Horizon House - Ideal for both professionals and families, commuting becomes effortless.
Located on the border of Southeast London within sight of Swanley Train Station which offers fast services to London Bridge, Charing Cross, Victoria and Blackfriars.
- Close To Station
- Open Plan Living Space
- 2 Double Bedrooms
- 6th Floor
- Lift Access
- Close to Motorway links
- Walking Distance of Town Centre
- Energy Efficiency Rated C - 76
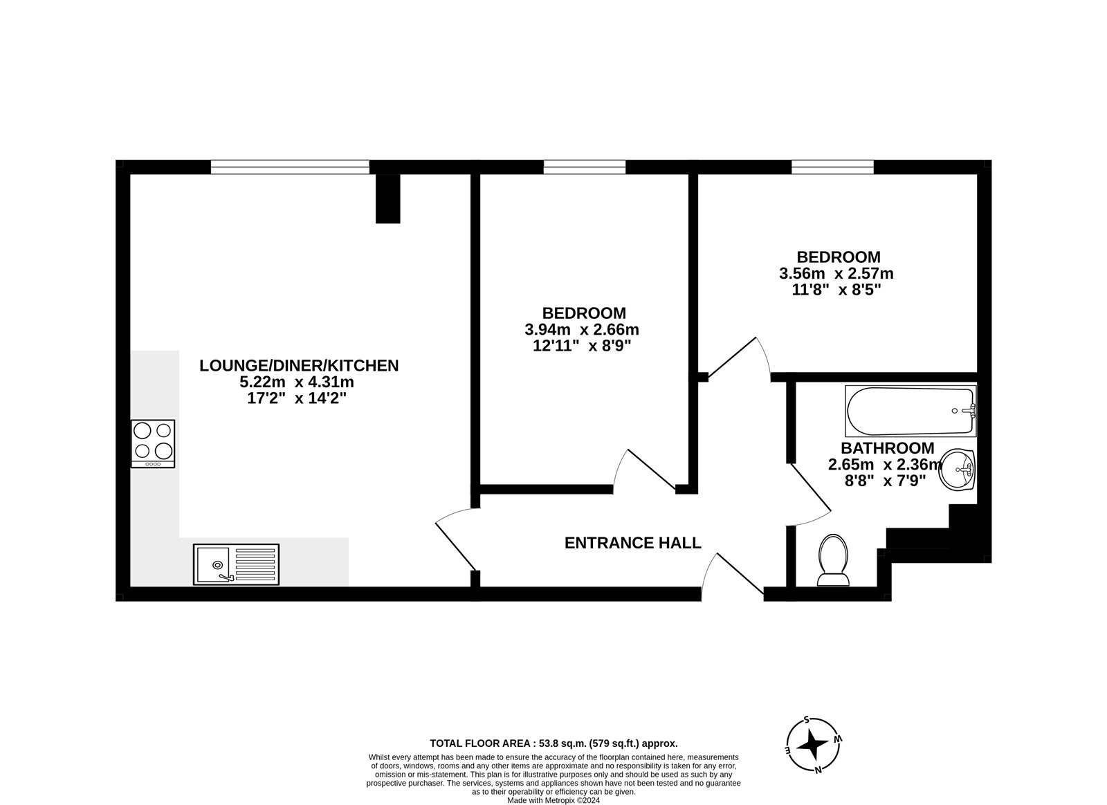
Rooms
HallwayDoor to front. Entry phone system.
Lounge/Diner/Kitchen 5.23m x 4.3mDouble glazed window. Kitchen Area – Range of matching wall and base cabinets with countertop over with inset sink/drainer and electric hob. Integrated washing machine, fridge, freezer, dishwasher and oven.
Bedroom One 3.96m x 2.44mDouble glazed window.
Bedroom Two 3.56m x 2.57mDouble glazed window.
BathroomEnclosed panelled bath with shower over and screen. Wash basin. Low level wc.
