Property Description
*** Guide Price £290,000-£300,000 ***
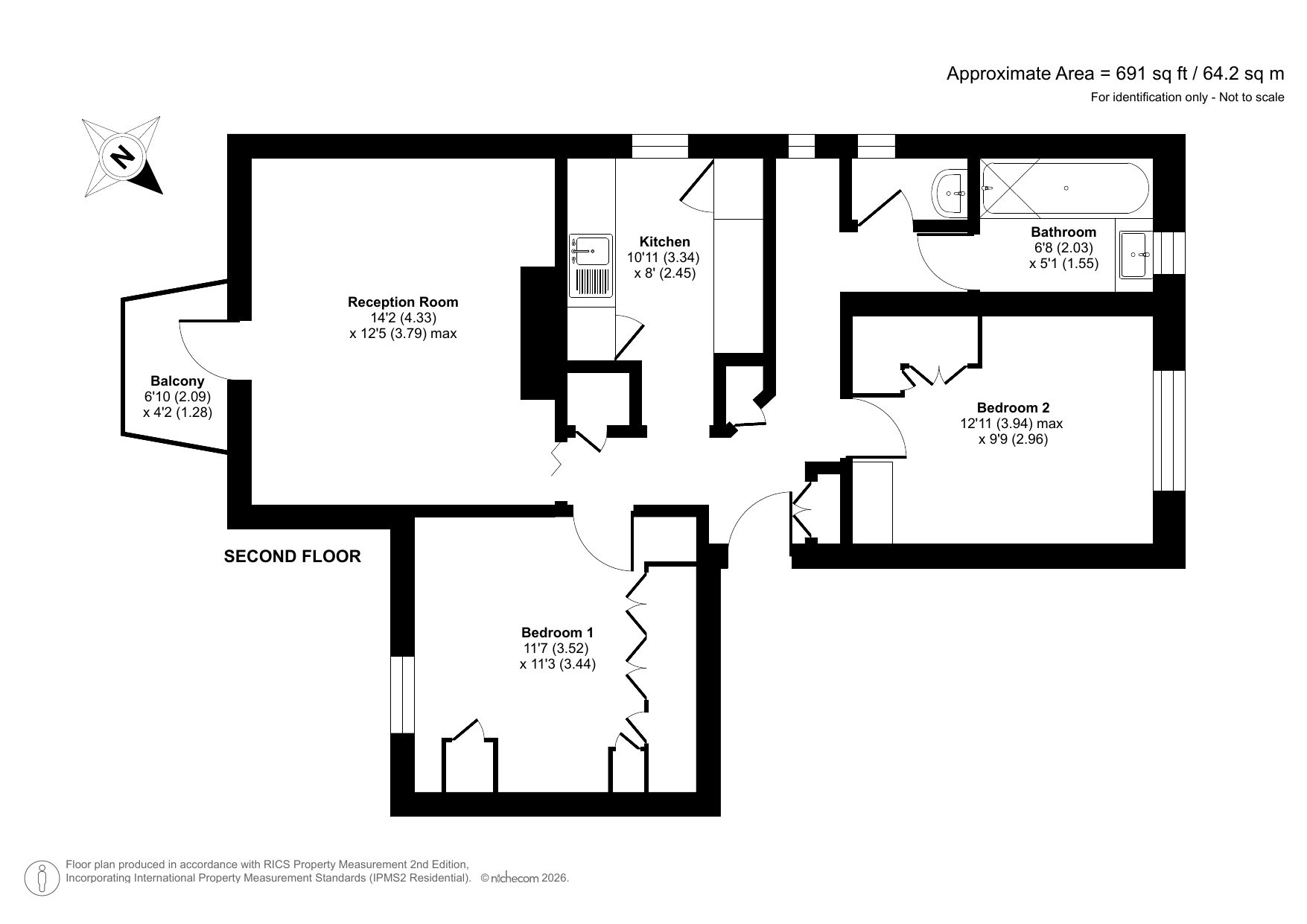
Spacious and well-presented top floor purpose built flat located in the ever popular Kingswood Estate.
Benefitting from two double bedrooms, 14' lounge with access to a balcony, bathroom with separate wc, communal gardens and long lease.
Within a short walk of Sydenham Hill station and Dulwich woods.
- TTop floor purpose built flat
- Two double bedrooms
- Total floor area 58sqm
- Balcony
- 14' Lounge
- ample storage
- Long lease
- Bathroom and separate wc
- Located in the ever popular Kingwood Estate
- A short walk to Sydenham Hill station and Dulwich Woods
Rooms
Communal EntrancePart glazed communal entrance door, stairs to top floor, vinyl flooring.
Entrance HallWooden entrance door, radiator, double glazed window to side, three storage cupboards, laminate flooring, dado rail.
LoungeDouble glazed window to side, double glazed door to balcony, radiator, carpet, coved ceiling.
KitchenDouble glazed window to side, range of fitted wall and base units with work surface over, one bowl stainless steel sink unit with mixer tap, space for gas cooker, plumbing for washing machine, extractor fan, tiled splash back, cupboard housing wall mounted boiler, tiled flooring, coved ceiling.
Bedroom OneDouble glazed window to side, radiator, carpet, fitted wardrobes with overhead storage unit, coved ceiling.
Bedroom TwoDouble glazed window to front, radiator, fitted wardrobe, carpet, coved ceiling.
BathroomOpaque double glazed window to front, radiator, two piece bathroom suite comprising of: panelled bath with mixer tap and shower attachment, inset wash hand basin with vanity unit under, tiled flooring, part tiled walls, extractor fan.
Separate WcOpaque double glazed window to side, radiator, low level wc, tiled flooring.
Balcony Communal Garden
