Property Description
*** Guide Price £300,000-£325,000 ***
Spacious and well-presented first floor 1990's purpose built flat.
Benefitting from 15' lounge with Juliet balcony, modern kitchen and bathroom, residents parking, communal garden and set within a quiet gated development.
Located a stone’s throw from Sydenham station and high street and within walking distance of Crystal Palace Park and the award winning Mayow Park.
- Quiet gated development
- Modern block
- 15' Lounge with Juliet balcony
- Modern kitchen and bathroom
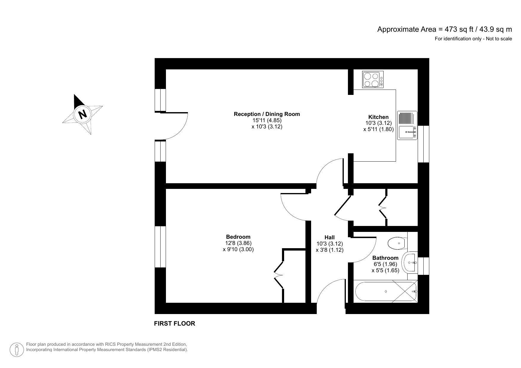
- Total floor area 43sqm
- Residents parking
- External bike shed
- Communal garden
- A stone’s throw from Sydenham station and high street
- Within walking distance of Crystal Palace Park and the award winning Mayow Park
Rooms
Communal EntrancePart opaque glazed wooden communal entrance door, carpet, stairs to first floor.
Entrance HallEntrance door, storage cupboard, oak flooring, video entry phone, spotlights.
LoungeDouble glazed door to Juliet balcony, wall mounted electric heater, entrance to kitchen, oak flooring, coved ceiling with spotlights.
KitchenDouble glazed window to rear, range of fitted white high gloss wall and base units with wooden work surface over, one bowl stainless steel sink unit with mixer tap, oven, hob and extractor fan to remain, integrated fridge/freezer and washing machine, tiled splash back, tiled flooring, coved ceiling with spotlights.
BedroomDouble glazed window to front, wall mounted electric heater, fitted wardrobe, oak flooring, spotlights.
BathroomOpaque double glazed window to rear, three piece bathroom suite comprising of: tiled panelled bath with mixer tap and mixer shower over, inset wash hand basin with mixer tap and vanity unit under, enclosed low level wc, tiled flooring, tiled walls, extractor fan, spotlights.
ParkingResidents parking.
Communal GardenMainly laid to lawn.
