Property Description
***GUIDE PRICE £260,000 - £280,000***
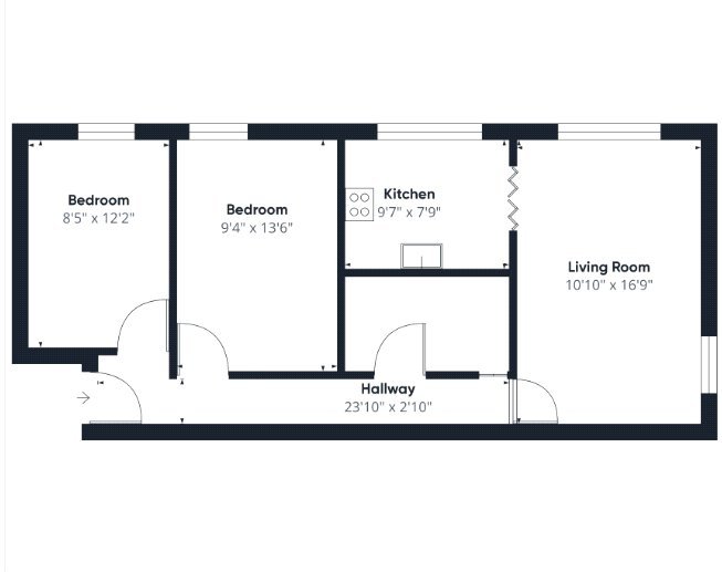
Presenting this charming 2-bedroom flat located in a convenient area. This property boasts a spacious living room, well-equipped kitchen, and a bathroom. The bedrooms are well-proportioned, offering ample space for relaxation. Residents can benefit from the convenience of allocated parking, ensuring a stress-free parking experience.
The flat is situated in a prime location, providing easy access to local amenities, transport links, and green spaces. Ideal for first-time buyers, investors, or those looking to downsize, this property offers a comfortable and convenient lifestyle.
Don't miss out on the opportunity to make this lovely flat your new home. Contact us today to arrange a viewing and secure this fantastic property for yourself.
- Chain free
- 10' Lounge
- 9' Fitted kitchen
- 964 Years lease (approx)
- Allocated parking space
Rooms
Entrance HallDoor to front, storage cupboard, carpet
Lounge 4.98m x 3.25mDouble glazed window to side and rear, storage heater, laminate wood flooring
Kitchen 2.8m x 2.26mDouble glazed window to front, wall and base units, free standing oven, extractor hood, stainless steel sink unit with mixer tap, space for washing machine, integrated dishwasher
Bedroom 1 3.96m x 2.72mDouble glazed window to front, storage heater, carpet
Bedroom 2 3.63m x 2.41mDouble glazed window to front, storage heater, carpet
BathroomPanelled bath with shower above and glass screen, pedestal wash hand basin, low level wc, tiled walls and floor
ParkingAllocated parking space
