Property Description
NO GROUND RENT!
GUIDE PRICE: £250,000- £270,000
This modern two double bedroom flat offers stylish and convenient living in a sought-after location. Featuring an open-plan kitchen and living area with integrated appliances, the space flows seamlessly onto a private balcony with lovely views.
Both bedrooms are generously sized, and the second bedroom, along with the bathroom, features wider doorways to accommodate wheelchair access. The block benefits from lift access and a well-maintained rooftop communal garden, ideal for relaxing or socialising.
An allocated parking space is included, with multiple visitor bays available for guests. Perfectly positioned within walking distance of Maidstone town centre, local shops, and Maidstone East, West, and Barracks train stations, the property also offers easy access to major motorways, making it ideal for commuters.
This move-in ready home is perfect for first-time buyers and a smart choice for buy to let investors thanks to its modern finish, prime location, and excellent transport links.
- SOLD BY ROBINSON MICHAEL & JACKSON
- NO GROUND RENT!
- Two double bedrooms.
- Communal roof top garden.
- Allocated parking.
- Walking distance to town centre and stations.
- Modern throughout.
- Integrated appliances.
Rooms
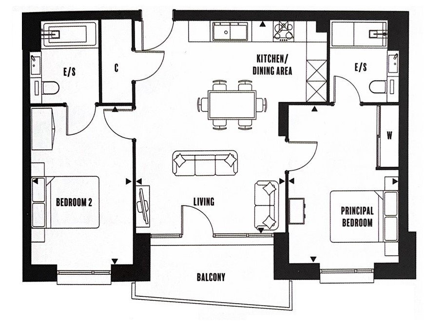
Kitchen/ Dining/ Living Room 4.36m x 6.10mOpen planned, windows to the front, door leading onto the balcony, integrated appliances in the kitchen, storage cupboard
Bedroom 1 3.24m x 4.63mWindow to the front, built in wardrobes, door, en-suite
En SuiteWalk in shower, basin, WC, door
Bedroom 2 2.98m x 4.63mWindow to the front, door, en-suite
En SuiteWalk in shower, basin, WC, door
