Property Description
Situated in the popular village of Iwade, this well-maintained two-bedroom ground floor flat offers generous living space in a quiet and convenient location.
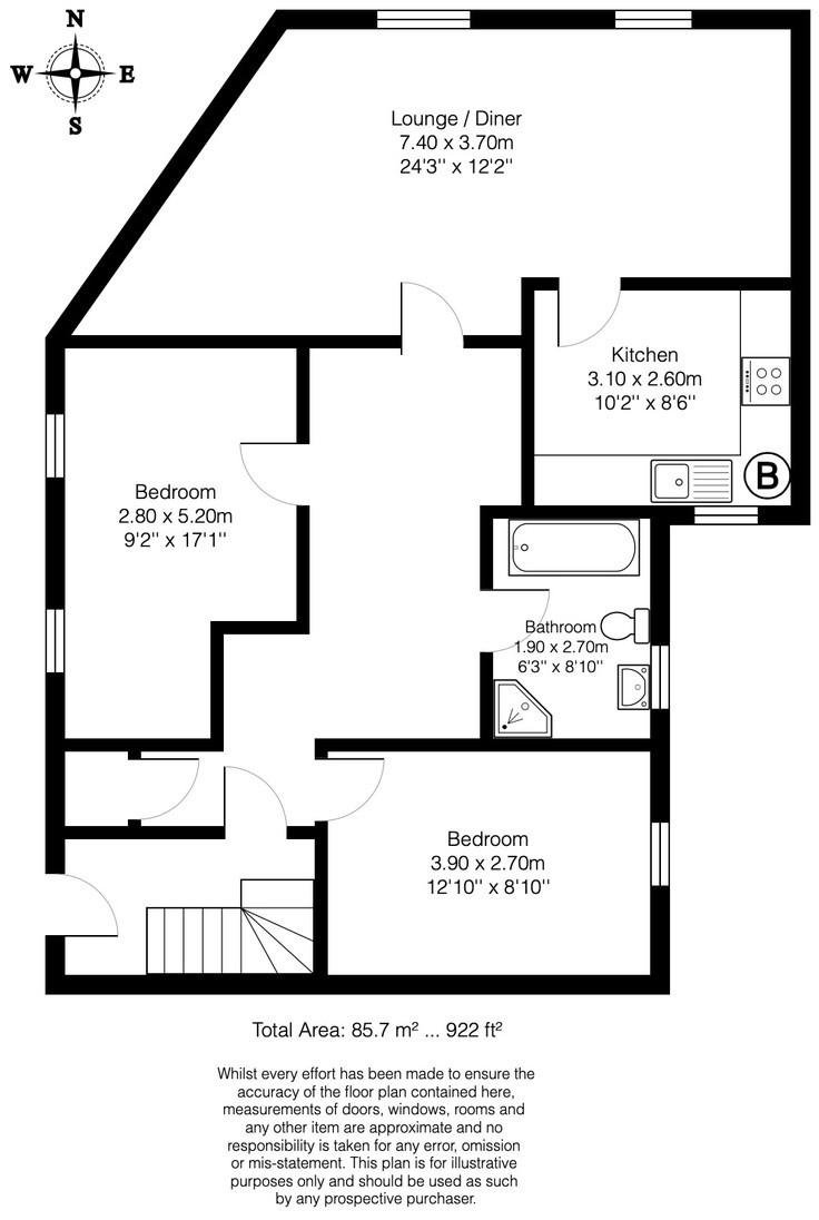
The property comprises a bright and spacious lounge, a modern fitted kitchen, and two good-sized double bedrooms, providing flexible accommodation for a range of lifestyles.
The contemporary bathroom features both a separate shower and a full-size bath, offering added convenience and comfort.
Further benefits include off-road parking and access to a well-kept communal garden, perfect for enjoying the outdoors without the upkeep.
Ideally located close to local shops, schools, and excellent transport links, this property is perfect for first-time buyers, downsizers, or investors.
- Two bedroom apartment
- Ground floor
- Share of freehold
- Off road parking
- No chain
- Sought after location
