Property Description
GUIDE PRICE: £170,000-£180,000
Offered with the advantage of no forward chain, this first-floor apartment provides a perfect blend of comfort and convenience on the popular south side of Maidstone.
The heart of the home is a bright and airy lounge featuring impressive bay windows that maximize natural light throughout the day. This space flows from a welcoming entrance hall that has been finished with brand-new carpets and includes a secure entry phone and a practical airing cupboard for storage.
The interior continues with a well-equipped kitchen and a contemporary family bathroom featuring a shower-over-bath arrangement. Both bedrooms are generously sized doubles that offer complete versatility, making the apartment equally suitable for an array of situations.
Owners of this property will also benefit from two allocated parking spaces alongside dedicated visitor bays for guests. Perfectly positioned for easy access to local amenities and transport links, this apartment is ready for an immediate and seamless move.
- 2 Allocated Parking Spaces
- Chain Free
- Two double bedrooms
- First Floor
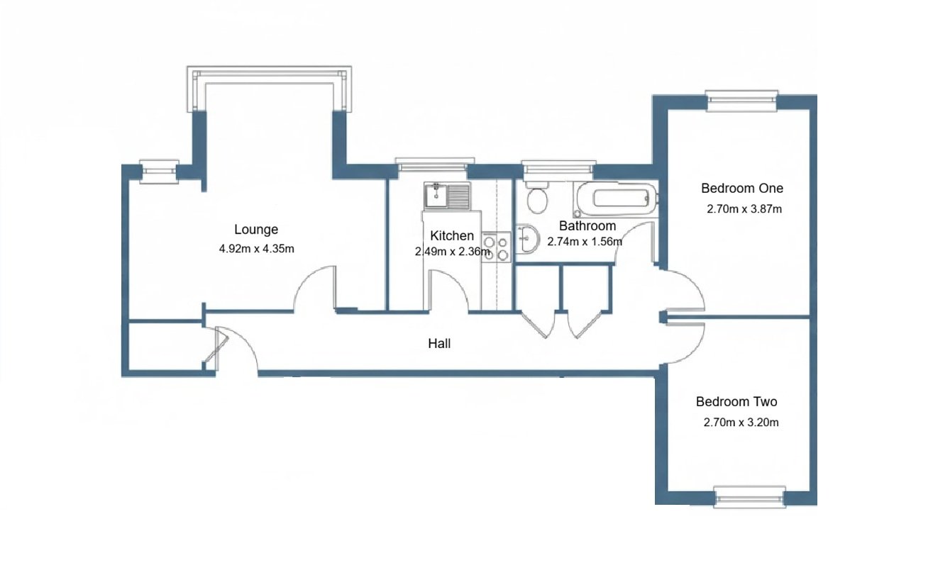
Rooms
Entrance HallDoor
Living Room 4.92m x 4.35mLarge window, door
Kitchen 2.49m x 2.36mWindow to the side, door, space for appliances
Bedroom 1 2.70m x 3.87mWindow to the side, door
Bedroom 2 2.70m x 3.20mWindow to the side, door
Bathroom 2.74m x 1.56mWindow to the side, shower over bath, WC, door
