Property Description
We are pleased to present this spacious semi detached family home. Benefitting from off street parking, a ground floor W.C and garage. The property is well located for Zone 6 stations, local schools and amenities.
- Sought After location
- 21' Garage
- Ground floor W.C
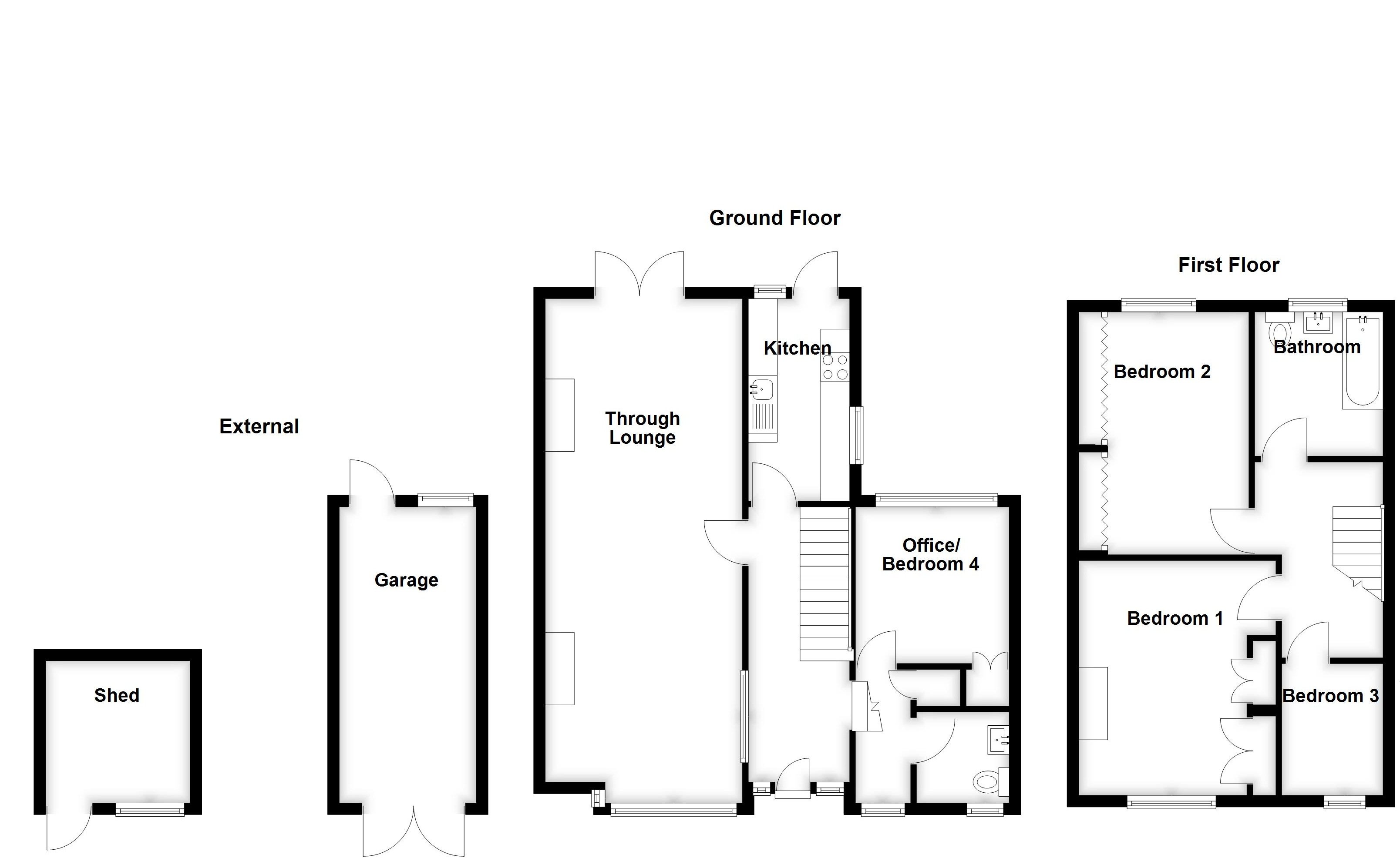
- Through Lounge
- Off Street Parking
- Zone 6 Stations
Rooms
Lounge/ Diner 8.7m x 3.73mKitchen 3.05m x 2.24mW.C 1.57m x 1.6mOffice/ Bed 4 2.46m x 2.87mBedroom 1 3.76m x 3.86mBedroom 2 4.1m x 3.23mBedroom 3 1.75m x 2.36mBathroom 1.96m x 2.2mGarage 2.36m x 6.55mShed 2.5m x 2.46mParking Off Street ParkingUtilities:
Electricity
Ask Agent
Water
Ask Agent
Heating
Ask Agent
Gas
Ask Agent
Sewerage
Ask Agent
Rights & Restrictions:
Is the property listed?
Ask Agent
Are there any restrictions associated with the property?
Ask Agent
Are there any easements, servitudes, or wayleaves?
Ask Agent
Are there any public rights of way across the property or its boundaries?
Ask Agent
Flood and Erosion Risk:
Has there been any flooding in the last 5 years?
Ask Agent
Flooding sources affecting the property:
Ask Agent
Are there any flood defences:
Ask Agent
