Property Description
Fantastic modern terraced family home featuring four double bedrooms, secluded front and rear gardens, wood flooring, and ample storage.
While the property would benefit from some TLC, it presents a fantastic opportunity to create a truly special family home. Ideally located in a popular and well-connected area, just a short walk from Forest Hill Station, it’s also surrounded by a range of highly regarded primary schools—perfect for growing families. Enjoy a vibrant local community with independent shops, cafes, bars, and restaurants nearby. Green spaces like the award-winning Mayow Park and the renowned Horniman Museum & Gardens are just around the corner, ideal for leisurely walks and family outings
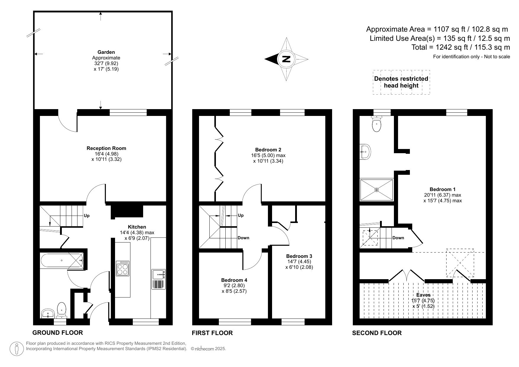
- Four Double Bedrooms
- Modern Terraced Family Home
- Freehold
- Secluded Front and Rear Garden
- Wood Flooring Where Stated
- Ample Storage
- Comfortable Family Home
- Excellently located for Forest Hill Station
Rooms
Entrance HallLaminate flooring, radiator
BathroomSingle glazed window to front, panelled bath, wash hand basin, low flush WC, vinyl flooring, radiator
LoungeSingle glazed window with secondary glazing to rear, double glazed door to rear, parquet flooring, radiator
KitchenSingle glazed window to front, base units, laminate work surface, stainless steel sink, space for fridge/freezer, washing machine plumbed for, space for dishwasher, space for oven, vinyl flooring
Master BedroomDouble glazed window to rear, skylight to front, eves storage, wood flooring, radiator; leading to
En SuiteDouble glazed window to rear, walk in shower, wash hand basin, low flush WC. tiled flooring heated towel rail
Bedroom TwoSingle glazed window to rear, built in cupboard, wood flooring, radiator
Bedroom ThreeSingle glazed window to front, wood flooring, radiator
Bedroom FourSingle glazed window to front, wood flooring, radiator
Garden
